Verkauf
bereits reserviert
// Familientraum mit Weitblick //
Großes, freistehendes Ein(2)familienhaus mit Gartenpool
vollunterkellert mit Wellness-&Hobbybereich in Meerbusch
-Langst-Kierst - Ihr neues Zuhause mit Potenzial
Das freistehende Haus bietet vielfältige Nutzungsmöglichkeiten, sowohl als klassisches Einfamilienhaus als auch für eine Mehrgenerationennutzung. Es bietet in jeder Hinsicht großes Potenzial und wartet darauf, von Ihnen entdeckt und geliebt zu werden.
Auf einem sonnigen, ca. 663 m² großen Grundstück, ergänzt durch zusätzliche ca. 503 m² Feld, zeichnet sich das freistehende Einfamilienhaus durch die großzügigen Wohnflächen mit ca. 200 m² aus, die sich von einem vollunterkellerten Wellness- und Hobbybereichs bis zum ausgebauten Spitzboden erstreckt. Zur Immobilie gehörten zudem eine Doppelgarage sowie eine Auffahrt mit zusätzlichen Parkmöglichkeiten.
Der weitläufige Garten hinter und neben dem Haus und der unverbaubare Ausblick auf das angrenzende Feld stellen einen zusätzlichen Wert und hohe Wohnqualität dar. Der hilfsbereite Mähroboter, einen großen und effizienten Swimmingpool und das Gartenhaus, schenkt der Familie vielfältige Möglichkeiten für Spiel, Entspannung und fröhliche Stunden im Freien.
Das Baujahr 1970 kennzeichnet das Haus durch eine solide, massive Bauweise, damit auch die Notwendigkeit für Renovierungs- & Modernisierungs- oder Sanierungsmaßnahmen. Hier liegt Ihr großes Potenzial: Gestalten Sie das Haus nach Ihren eigenen Vorstellungen und Bedürfnissen und schaffen Sie Ihr persönliches Traumhaus in TOP Wohnlage.
Für eine Familie perfekt geeignet, aber auch ideal als Kombination von Wohnen und Arbeiten oder wie ursprünglich konzipiert, als Mehrgenerationenhaus nutzbar.
Die Lage in Langst-Kierst ist besonders gefragt und bietet eine ideale Umgebung für Familien. Sie profitieren von einer ausgezeichneten Infrastruktur, der Nähe zu verschiedenen Freizeitmöglichkeiten sowie einer Vielzahl an Schulen und Einkaufsmöglichkeiten. Die familienfreundliche Nachbarschaft macht diesen Ort zu einem perfekten Zuhause für Jung und Alt.
Wir laden Sie herzlich ein, dieses derzeit seltene Angebot mit uns zu entdecken und sich selbst von seinem großen Potenzial zu begeistern. Vereinbaren Sie noch heute Ihren persönlichen Besichtigungstermin!
| Lage | 40668 Meerbusch -Langst-Kierst; Am Nierster Pfad |
|---|---|
| Art | Freistehendes Ein(2)familienhaus mit Doppelgarage, Vollunterkellert, Garten mit Außenpool |
| Geschosse |
|
| Energieausweis |
|
| Übergabe |
Frei ab II. Quartal 2025 |
| Kaufpreis | Unser aussagekräftiges Exposé, die Kostenaufstellung der monatlichen Ausgaben, den Energieausweis, Unterlagen und ersten Impressionen senden wir Ihnen schnell zu. Sie sind herzlich zu Ihrer Besichtigung eingeladen! |
| Extras |
|
| Provision | 3,57 % (inkl. 19% gesetzl. MwSt.) vom Kaufpreis Mit Beurkundung des notariellen Kaufvertrages ist unser Erfolgshonorar in Höhe von 3,57 % Käuferprovision inkl. MwSt., des erzielten Kaufpreises vom Käufer verdient und fällig. Wir haben einen provisionspflichtigen Maklervertrag mit dem Verkäufer in gleicher Höhe abgeschlossen. Grunderwerbssteuer, Notar- & Gerichtskosten (etc.) trägt der Käufer. |
| Kontakt | info@pink-immobilien.de |
Neues Angebot
Attraktive Eigentumswohnung für Anleger und Wohncharakter - Liebhaber mit prägnanter Fensterfront und unverwechselbarem
Charme, vis-à-vis der beliebten Lorettostraße – Urbaner Lifestyle
Diese begehrenswerte Eigentumswohnung besticht durch ihr offenes Raumkonzept mit fließenden Übergängen zwischen Küche, Ess- und Wohnbereich sowie einer sonnigen Loggia. Bodentiefe Holzfenster schaffen ein unverwechselbares Wohngefühl von Helligkeit, Weite und moderner Ästhetik – ein Raum, der zum Leben und Gestalten einlädt.
Mit dieser Immobilie erwerben Sie nicht nur eine Wohnung, sondern ein Stück urbaner Wohnkultur in einer der dynamischsten Lagen Düsseldorfs. Die Kombination aus Design, Licht und großzügigen Raumverhältnissen erfüllt höchste Ansprüche an Komfort und Lebensqualität.
Ein besonderes Plus für Kapitalanleger: Die Wohnung ist seit Jahren an einen solventen und zuverlässigen Mieter vermietet – mit gesicherten Mieteinnahmen und der Option auf spätere Eigennutzung. Damit bietet sie nicht nur Stabilität, sondern auch strategische Flexibilität für Ihre Vermögensplanung.
Direkt im aufstrebenden Medienhafen gelegen, umgeben von Szene-Restaurants, exklusiven Boutiquen und innovativer Architektur, überzeugt diese Lage durch urbanen Lifestyle und nachhaltiges Wertsteigerungspotenzial.
Ob als sichere Kapitalanlage oder als künftiges Zuhause mit Charakter – hier investieren Sie in mehr als nur Quadratmeter: in Ihre Zukunft.
| Lage | 40127 Düsseldorf- Unterbilk - Kronprinzenstraße 27 |
|---|---|
| Art | Eigentumswohnung mit Loggia, Keller und Tiefgaragenstellplatz |
| Geschosse | 1 Obergeschoss |
| Energieausweis |
|
| Übergabe |
Erwerb ab Sofort oder nach Vereinbarung |
| Kaufpreis | Unser aussagekräftiges Exposé, die Kostenaufstellung der monatlichen Ausgaben, den Energieausweis, Unterlagen und ersten Impressionen senden wir Ihnen schnell zu. Sie sind herzlich zu Ihrer Besichtigung eingeladen! |
| Extras |
|
| Provision | 3,57 % (inkl. 19% gesetzl. MwSt.) vom Kaufpreis Mit Beurkundung des notariellen Kaufvertrages ist unser Erfolgshonorar in Höhe von 3,57 % Käuferprovision inkl. MwSt., des erzielten Kaufpreises vom Käufer verdient und fällig. Wir haben einen provisionspflichtigen Maklervertrag mit dem Verkäufer in gleicher Höhe abgeschlossen. Grunderwerbssteuer, Notar- & Gerichtskosten (etc.) trägt der Käufer. |
| Kontakt | info@pink-immobilien.de |
// Exklusives Immobilienpaket \\ Bestlage am Mannesmannufer!
ZWEI Wohnungen und Tiefgaragenstellplatz mit Potential - Zur Eigennutzung oder Ihr TOP Invest in den Immobilienmarkt!
Unser Angebot präsentiert Ihnen eine Immobilie, die in ihrer Lage und Einzigartigkeit absolut herausragend ist. Solche Wohnobjekte in einer Alleinstellungslage wie dieser kommen äußerst auf dem Markt, und wir freuen uns, Ihnen die Gelegenheit zum Erwerb dieses einzigartigen Immobilienpakets eröffnen zu können.
Die Immobilie befindet sich in bester Lage und bietet eine Vielzahl von Gestaltungsmöglichkeiten mit großem Potential. Wir möchten Ihnen heute die seltene Gelegenheit bieten, diese attraktiven Stadteigentumswohnungen zu erwerben.
Fragen Sie unser aussagekräftiges Exposé mit Grundrissen, die Kostenaufstellung der monatlichen Ausgaben, den Energieausweis und erste Impressionen dieses exklusiven Wohn(t)raums, den wir exklusiv anbieten.
Dieses Angebot soll als Einladung dienen, die Immobilie persönlich zu besichtigen und Ihre Bedürfnisse, Wünsche und Vorstellungen zu besprechen. Auf diese Weise können wir individuelle Lösungen anbieten und die vielfältigen Möglichkeiten dieses Angebots ausführlich erörtern.
Erleben Sie erstklassige Wohnqualität mit einem beeindruckenden Blick auf den Rhein und vielfältigen Nutzungsmöglichkeiten in dieser begehrten 1A-Wohnlage. Vereinbaren Sie Ihren persönlichen Besichtigungstermin und entdecken Sie Ihr zukünftiges Zuhause!
| Lage | 40213 Düsseldorf - Carlstadt; Mannesmannufer 6 |
|---|---|
| Art |
|
| Energieausweis |
|
| Nutzung | Frei ab 2024 / Keine gewerbliche Nutzung erlaubt |
| Baumaßnahme | Im Jahr 2023 wurde eine umfangreiche Haussanierungsmaßnahme durchgeführt, bei der unter anderem neue Fenster installiert wurden. Darüber hinaus wurden die vor- und rückseitigen Balkone überarbeitet und teils vergrößert, um den Bewohnern eine Sicherheit und noch größere Wertschätzung des Rheinblicks zu ermöglichen. Diese Arbeiten sind bereits in fortgeschrittenem Stadium und werden in Kürze abgeschlossen sein. Dies bedeutet, dass Sie sich direkt nach dem Erwerb dieser Immobilien eines modernisierten Hauses mit bewährter Wohnqualität erfreuen können, ohne zusätzliche Zeit und Mühe in aktive Maßnahmen investieren zu müssen. Rückwärtige Zahlungen für diese Sanierungsarbeiten werden nicht von Ihnen abgefragt. |
| Rücklage der WEG | Euro 97.387,77 | Stand Dez. 2023 der Gesamt-Instandhaltungsrücklage |
| Kaufpreis | Unser aussagekräftiges Exposé, die Kostenaufstellung der monatlichen Ausgaben, den Energieausweis, Unterlagen und ersten Impressionen senden wir Ihnen schnell zu. Sie sind herzlich zu Ihrer Besichtigung eingeladen! |
| Extras |
|
| Provision | 3,57 % (inkl. 19% gesetzl. MwSt.) vom Kaufpreis |
| Kontakt | info@pink-immobilien.de |
Seltenes Angebot
Offene Maisonette-Eigentumswohnung mit Sonnenbalkon und moderner Einbauküche mit Wohlfühlatmosphäre in Itter
*Wohnen über zwei Ebenen voller Licht, Charme und Geborgenheit – Ihre Maisonette-Oase in Düsseldorf-Itter*
Diese außergewöhnliche Eigentumswohnung verbindet modernes Design mit dem besonderen Flair einer Maisonette: Auf zwei Ebenen erwartet Sie ein großzügiges, lichtdurchflutetes Zuhause, das Geborgenheit und Offenheit zugleich schenkt. Bodentiefe Fenster und offene Raumgestaltung schaffen ein unvergleichliches Ambiente – mit Blick auf Wiesen und Pferdekoppeln, das an eine grüne Oase erinnert und doch mitten in der Stadt liegt.
Eine Rarität in Düsseldorf-Itter, einer der begehrtesten Wohnlagen der Stadt. Vergleichbare Immobilienangebote sind hier rar – eine Investition in Lebensqualität und Wertbeständigkeit!
Die Wohnung befindet sich im 2. Ober- und Dachgeschoss eines gepflegten 3-Parteien-Hauses aus dem Jahr 1981. Sie überzeugt durch hochwertige Materialien, helle Räume und ein klares Gestaltungskonzept, das eine warme, einladende Atmosphäre schafft. Hier ist Wohlfühlen kein Versprechen, sondern gelebter Alltag.
Itter ist bekannt für seinen charmanten dörflichen Charakter in unmittelbarer Stadtnähe. Die grünen Wiesen, die zugängliche Nachbarschaft und die hohe Lebensqualität machen diesen Stadtteil zu einer der gefragtesten Wohngegenden in Düsseldorf. Hier genießen Sie Ruhe und Natur, ohne auf die Vorteile des Stadtlebens verzichten zu müssen.
Erleben Sie die perfekte Symbiose aus urbaner Eleganz und naturnaher Idylle in einer der begehrtesten Wohnlagen Düsseldorfs.
| Lage | 40589 Düsseldorf-Itter: Huvestraße |
|---|---|
| Art | Maisonette-Eigentumswohnung mit Terrasse und Keller |
| Geschoss | 2. Obergeschoss |
| Energieausweise |
|
| Übergabe | Erwerb ab Sofort oder nach Vereinbarung |
| Kaufpreis | Unser aussagekräftiges Exposé, die Kostenaufstellung der monatlichen Ausgaben, den Energieausweis, Unterlagen und ersten Impressionen senden wir Ihnen schnell zu. Sie sind herzlich zu Ihrer Besichtigung eingeladen! |
| Extras |
|
| Provision | 3,57 % (inkl. 19% gesetzl. MwSt.) vom Kaufpreis
Mit Beurkundung des notariellen Kaufvertrages ist unser Erfolgshonorar in Höhe von 3,57 % Käuferprovision inkl. MwSt., des erzielten Kaufpreises vom Käufer verdient und fällig. Wir haben einen provisionspflichtigen Maklervertrag mit dem Verkäufer in gleicher Höhe abgeschlossen. Grunderwerbssteuer, Notar- & Gerichtskosten (etc.) trägt der Käufer. |
| Kontakt | info@pink-immobilien.de |
bereits reserviert
// Ihr feistender NEUBAU auf der ALLEE \\ – im begehrten Düsseldorf-Lohausen – dem Dorf mit Herz! *Baugrundstück*
Sie träumen von + BAULAND + im begehrten Düsseldorfer Norden?
Sie wollen Ihren ganz persönlichen WohnTRAUM nach Ihren Ideen und Wünschen planen und wahrwerden lassen? In Lohausen wird IHR Traum WIRKLICHKEIT !
Hier schätzen Sie eine citynahe Lage, genießen den urbanen Lebensstil und Privatsphäre zugleich!
Realisieren Sie an der prächtigen Lantzallee, in einer der bevorzugten Wohnlagen der Landeshauptstadt Düsseldorf, auf dem ca. 734m² großen Grundstück Ihren ganz persönlichen Wohntraum von dem eigenen Zuhause. Sie können es direkt von der Lantzallee aus zu begehen oder über eine kleine Privatstraße, die links am Grundstück entlang führt und das Wegerecht für 2 weiter Grundstücke hält.
Nach dem schnellen Abriss des vorhandenen Holzhauses, eignet sich das Grundstück hervorragend für den Neubau eins Einfamilienhauses. Wobei eine I- bis II-geschossige Einfamilienhausbebauung, natürlich abhängig von dem Bebauungsplan und der Genehmigung der Baupläne durch das Bauamt Düsseldorf, nach Ihren persönlichen Vorstellungen und Wünsche umsetzbar ist.
Düsseldorf-Lohausen, in exponierter Lage des begehrten Düsseldorfer Nordens gelegen, hat sich seinen ländlichen Charakter erhalten und ist dank seiner optimalen Infrastruktur perfekt an die Düsseldorfer Innenstadt, die umliegenden Nachbarstädte, das Messegelände und den Flughafen angebunden.
Nutzen Sie den Standortvorteil der florierenden Landeshauptstadt Düsseldorf und sichern Sie sich jetzt diesen citynahen Wohn(t)raum in einer der begehrtesten Lagen der Stadt.
Lernen Sie jetzt dieses reizvolle Grundstück im Herzen von Lohausen kennen und entdecken Sie die Möglichkeiten, die sich bei der individuellen Planung und Gestaltung Ihres freistehenden Neubauhauses bieten.
| Lage | 40474 Düsseldorf, Lantzallee 27 |
|---|---|
| Gebäudetyp | Zurzeit Einfamilien-Holzhaus – zum Abriss |
| Wohnungstyp | Einfamilienhaus |
| Wohnfläche | Zurzeit ca. 90 m² |
| Geschosse | 2 plus Keller |
| Grundstücksfläche | 734 m² |
| Kaufpreis | € 493.000,- |
| Frei ab | Ab sofort |
| Extras |
|
| Baujahr Gebäude | Ca. 1947 |
| Energieausweis | Ein Energieausweis liegt nicht vor; da es sich um ein Grundstück mit bevorstehendem Abriss der Aufbauten handelt wird dieser bei Veräußerung des Grundstückes nicht benötigt. |
| Provision | 3,57 % (inkl. 19% gesetzl. MwSt.) vom Kaufpreis |
| Kontakt | info@pink-immobilien.de |
Attraktives Einfamilienhaus *mit Potential* aus dem Jahr 1990 mit West-Garten in Spielstraße im begehrten Meerbusch – Lank
Hier bekommen Sie in einer freundlichen Reihenhaussiedlung ein sehr gepflegtes Einfamilienhaus auf einer Spielstraße geboten.
Die Wohnvielfalt dieses Hauses wird Sie überzeugen und punktet mit Charme, insbesondere durch helle Räume, einem großen Wohnzimmer, einem Familienbad und durch den vollausgebauten Keller. Darüber hinaus lädt der Garten zum Sonnen ein! Dies verspricht viel Wohnqualität und Platz zum Wohlfühlen.
Das Reihenmittelhaus aus dem Jahre 1990 steht auf einem ca. 123 m² großen Grundstück mit einer Wohnfläche von rund 110 m², zwei davor liegenden PKW Parkplätzen und einem nach Westen ausgerichteten Garten.
Jede Etage des attraktiven Hauses kann optimal genutzt werden. Mit wenig Aufwand, erzielen Sie hier eine große Wirkung - Nutzen Sie das Potenzial des Hauses!
Ein Haus für Menschen, die Wohnen im wohlfühl Ambiente lieben, einen dörflichen Charakter schätzen und zugleich die optimale Anbindung an die florierende Landeshauptstadt Düsseldorf suchen.
| Lage | 40668 Meerbusch-Lank, Wielandstraße |
|---|---|
| Gebäudetyp | Reihenmittelhaus als Einfamilienhaus |
| Wohnfläche | ca. 110 m² plus ca. 41m² Keller |
| Geschosse | 2 plus Keller |
| Grundstücksfläche | ca. 123 m² |
| Kaufpreis | € 373.000,- |
| Stellplätze | Je € 10.000,- |
| Gesamtkaufpreis | € 393.000,- |
| Extras |
|
| Baujahr Gebäude | Ca. 1990 |
| Energieausweis | Energieausweistyp: Verbrauchsausweis Gültig bis: 20.03.2029 Baujahr Anlagentechnik: 1990 Energieträger: Gas Endenergiebedarfskennwert: 66,7 kWh/(m²a) |
| Provision | 3,57 % (inkl. 19% gesetzl. MwSt.) vom Kaufpreis |
| Kontakt | info@pink-immobilien.de |
bereits verkauft
Wohnkultur mit edler Note!
Elegante 4-Zimmer-Eigentumswohnung mit Garten und Sauna in bester Lage nahe dem Rhein in Niederkassel!
Genießen Sie diese auf hohem Niveau gestaltete Erdgeschosswohnung mit 4 Zimmern, die Ihnen im schönen Niederkassel auf einer Wohnfläche von rund 130m² hohen Komfort und Lebensqualität für den anspruchsvollen Geschmack bietet.
Die großzügigen Wohnbereiche mit fließenden Übergängen in den Garten und in die Küche, ein Elternschlafzimmer en Suite mit integrierter Sauna, zwei weitere Zimmer und ein Gäste-WC mit Dusche befinden sich in einem sehr gepflegten Mehrfamilienhaus mit sechs Wohneinheiten und gehobener Klientel.
Highlight der Wohnung ist der elegante Wohnbereich mit Parkettboden sowie weißen Fenstern und Türen, der sich mit rund 38m² groß großzügig präsentiert und durch seine große Fensterfronten einen schönen Ausblick auf eine rund 22 m² große Terrasse bietet. Großzügige Fensteranlagen in Raumhöhe ermöglichen herrlichen Ausblick in Ihren Garten mit verschiedenen Terrassen, zu Ihrer alleinigen Nutzung. An dem 16m² große Masterschlafzimmer, das zur ruhigen Gartenseite liegt, befindet sich das ansprechende Wellnessbadezimmer Weitere Wohnfläche erhalten Sie mit den zusätzlichen zwei Zimmern von je rund 13m².
Geprägt durch ihre gut erhaltenen Gebäude sowie die gehobene Infrastruktur zählt Niederkassel neben Oberkassel zu den exklusivsten Wohnlagen der Landeshauptstadt. Restaurants, Cafés, Banken und Ärzte aller Fachrichtungen finden Sie entweder in unmittelbare Nähe auf der Niederkasseler Straße oder in nur 5-10 Gehminuten auf der nahe gelegenen Luegallee und dem beliebten Barbarossaplatz. Absolutes Highlight: Direkt um die Ecke Ihres neues Zuhauses verwöhnt seit 1990 Guiseppe Saitta, seine Gäste in der Osteria Saitta am Nussbaum. Aus dieser Küche kommt nur ausgezeichnete Qualität.
| Lage | 40547 Düsseldorf – Niederkassel, Kanalstraße |
|---|---|
| Objekt | Eigentumswohnung |
| Baujahr | 1991 |
| Geschoss | Erdgeschoss mit Garten |
| Wohnfläche | ca. 131,57 m² |
| Zimmer | 4, plus Keller |
| Frei | Nach Vereinbarung |
| Extras | Miele-Einbauküche; Sauna; Garten; TG-Stellplatz, Mietfrei etc. |
| Energieausweis |
Energieausweistyp: Verbrauchsausweis
Ausstellungsdatum: 5.11.2008 Baujahr Anlagentechnik: 1990 Energieträger: Erdgas Energieverbrauchskennwert: 192,96 kWh/(m²a) |
| Kaufpreis | Wird nicht veröffentlicht. |
| Extras | Mietfrei; Fußbodenheizung; Marmor Bäder; und vieles mehr |
| Provision | 3,57 % (inkl. gesetzl. MwSt.) vom Kaufpreis |
| Kontakt | info@pink-immobilien.de |
Komfortable 4-Zimmer-Maisonette-Eigentumswohnung!
Mit viel Potential! + Südbalkon + hauseigenes Schwimmbad/Sauna + Tiefgaragenstellplatz am Hanielpark im Zooviertel
Treten Sie ein und werden Sie Eigentümer dieser attraktiven Stadtwohnung mit rund 133 m² Wohnfläche auf zwei Ebenen!
Das mit ca. 38 m² großzügig geschnittene Wohnzimmer mit direkt angeschlossenem Südbalkon ist der geräumige Mittelpunkt dieser außergewöhnlichen Wohnung. Von hier führt Ihr Blick ins Grüne; in den gepflegten Gemeinschaftsgarten und den Hanielpark.
Begeistern werden Sie die darüber hinaus die gemeinschaftlichen Besonderheiten des gepflegten Mehrfamilienhauses; ein großes tagesbelichtetes Schwimmbad, ein Wellnessbereich mit Sauna, ein Hobbyraum mit Fitnessgerät und Tischtennisplatte und der gepflegte Garten stehen Ihnen als Eigentümer zur Nutzung zur Verfügung. Dies verspricht Wohnqualität PUR!
Dies ist eine Wohnung mit Potential: Der Grundriss ermöglicht Ihnen Ihre eigenen Vorstellungen und Wünsche zu erfüllen. Eine Vielfalt an Gestaltungsmöglichkeiten ist umsetzbar – davon werden Sie lange profitieren!
Highlight ist – neben der attraktiven 4-Zimmer-Maisonette-Eigentumswohnung selbst – insbesondere die citynahe Wohnlage des begehrten Düsseldorfer Stadtteils Düsseltal, auch Zooviertel genannt, direkt am Hanielpark gelegen. Hier verbinden sich pulsierendes Stadtleben und Erholung mit zahlreichen Freizeitmöglichkeiten in einer attraktiven Umgebung, die den Wünschen des anspruchsvollen Käufers an hohe Wohn- und Lebensqualität gerecht wird
In diesem Objekt setzen Sie bereits heute Akzente für ein attraktives Wohnerlebnis und investieren jetzt in solides Eigentum und in Ihre Zukunft!
| Lage | 40237 Düsseldorf Düsseltal - Sohnstraße |
|---|---|
| Gebäudetyp | Mehrfamilienhaus |
| Wohnungstyp | Maisonette-Wohnung |
| Wohnfläche | ca. 133,0 m² |
| Zimmer | 4,5 |
| Etage | Hochparterre |
| Kaufpreis | 345.000 € |
| Kaufpreis TG-Stellplatz |
15.000 € |
| Kaufpreis insgesamt | 360.000 € |
| Hausgeld | ca. 550 € mtl. – Ersehen Sie unsere detaillierte Kostenaufstellung |
| Extras | Grundriss mit viel Potential, Einbauschränke, großzügiges Wohnzimmer mit bodentiefen Fenstern, großer Balkon&Loggia. Untergeschoss mit einem separaten Wohn-und Schlafbereich, einem eigenen Duschbad, eigenem Kellerraum und mit Zugang zum Treppenhaus/Gemeinschaftsbereich, der auch ein separater Eingang ist. Hauseigenes Schwimmbad, Sauna, Fitnessraum, Wasch-&Trockenkeller und Tiefgarage |
| Baujahr Gebäude | 1972 |
| Energieausweis | Energieausweistyp: Bedarfsausweis Ausstellungsdatum: 17.04.2008 Baujahr Anlagentechnik: 2001 Energieträger: Heizöl Endenergiebedarfskennwert: 186 kWh/(m²a) |
| Provision | 3,57 % (inkl. 19% gesetzl. MwSt.) vom Kaufpreis |
| Kontakt | info@pink-immobilien.de |
bereits reserviert
// TOP 2-Zimmer- DG-Eigentumswohnung mit Wohlfühlatmosphäre \\ - CITY- und UNInah - Ihr günstiger Einstieg in den Düsseldorfer Immobilienmarkt!
Eine vielversprechende Kapitalanlage oder auch Selbstnutzung: Diese attraktive Dachgeschosswohnung in TOP Wohnlage besticht mit ca. 61,71 m² Wohnfläche und einem großzügig Schnitt mit Abstellflächen. Privatsphäre und Ruhe sind Ihnen hier in der obersten Etage mit Wohlfühlatmosphäre garantiert.
Das + HERZSTÜCK + ist die großzügige Wohnküche mit Essbereich und Zugang zum Wohnzimmer – Ihr kommunikativer Freirraum!
Highlight ist – neben der gemütlichen 2-Zimmer-Eigentumswohnung selbst – insbesondere die city- und universitätsnahe Wohnlage des lebendigen Düsseldorfer Stadtteils Derendorf. Hier kommen Sie in den Genuss zahlreicher Freizeitmöglichkeiten und profitieren zugleich von der hervorragenden Verkehrsanbindungen.
Erleben Sie diese Wohnung mit Potential und setzen Sie bereits heute Akzente für Ihren attraktiven Wohn(t)raum! Investieren Sie jetzt in solides Eigentum in der Landeshauptstadt und in Ihre Zukunft!
Dieses TOP Investment bietet Ihnen Verlässlichkeit und Stabilität.
| Lage | 40476 Düsseldorf Derendorf; Golzheimer Straße |
|---|---|
| Gebäudetyp | Mehrfamilienhaus mit 10 Wohneinheiten |
| Wohnungstyp | Dachgeschosswohnung, Nr. 10 |
| Wohnfläche | ca. 61,71 m² |
| Zimmer | 2 |
| Etage | 4. Etage; Dachgeschoss rechts |
| Kaufpreis | € 225.000,- |
| Hausgeld | € 172,- |
| derzeitig erzielte Kaltmiete | € 468,- (Mieterhöhung und absolute Steigerung möglich) |
| Baujahr Gebäude | 1928 |
| Baujahr Wohnung | Ausbau des Dachgeschosses im Jahr 1951, Umbau 1991 |
| Extras |
|
| Energieausweis | Energieausweistyp: Verbrauchsausweis Ausstellungsdatum: 18.05.2017 Baujahr Anlagentechnik: 1984-2014 Energieträger: Gas Energieverbrauchskennwert: 96,0 kWh/(m²a) |
| Provision | 3,57 % (inkl. 19 % gesetzliche MwSt.) vom Kaufpreis |
| Kontakt | info@pink-immobilien.de |
bereits verkauft Großzügig aufgeteilte 2-Zimmer- Balkonwohnung nähe Nordstraße in Derendorf!
In der hellen Wohnung versprechen die großzügigen Raumverhältnisse und das Highlight: der große Balkon pure Wohnqualität. Ziehen Sie selber ein und genießen Sie die bevorzugte Lage oder vermieten Sie problemlos.
| Lage | 40476 Düsseldorf Derendorf – Roßstraße |
|---|---|
| Wohnfläche | ca. 67 m² |
| Zimmer | 2, Balkon, Keller |
| Etage | 3. Obergeschoss mit Aufzug |
| Kaufpreis | Auf Anfrage (auf Wunsch auch mietfrei) | Extras | Aufzug, Wannenbad |
| Baujahr Gebäude | 1950 |
| Energieausweis |
Energieausweistyp: Verbrauchsausweis
Ausstellungsdatum: 08.10.2008 Baujahr Anlagentechnik: 2007 Energieträger: Gas Energieverbrauchskennwert: 140,00 kWh/(m²a) |
| Provision | 3,57 % inkl. 19% gesetzl. MwSt. des Kaufpreises |
| Kontakt | info@pink-immobilien.de |
Werte die bleiben!
Zehn-Parteien-Miethaus in gefragter Lage von Düsseldorf - Pempelfort
Dieses Mehrfamilienhaus mit ausgebautem Dachgeschoss hat zehn Wohneinheiten und ist ein reines Wohnhaus. Es bietet Ihnen eine solide Kapitalanlage mit einer ganze Reihe überzeugender Argumente.
Die Lage des Mehrfamilienhauses erfährt aktuell eine hohe Aufwertung durch die „Pempelforter Garten“, ein Neubauprojekt mit vielfältigen Wohnformen in direkter Nachbarschaft – u.a. wird das Haus links nebenan neu gebaut. Auch der neu angelegte 2.500 m² große Stadtgarten erhöht die Lebensqualität und das Wohlbefinden der Menschen in ihrem Stadtteil. Die Winkelsfelder Straße gewinnt schon heute nachhaltig an Attraktivität und wird auch künftig eine begehrte Adresse in einem pulsierenden Stadtteil sein. Im Erbbaurecht errichtetes Gebäude.
| Lage | 40477 Düsseldorf Pempelfort – Winkelsfelder Straße |
|---|---|
| Objekt | Zehn-Parteien-Miethaus |
| Baujahr | 1955 |
| Bewertungsjahr | 1968 |
| Grundstücksfläche | ca. 264 m² |
| Wohnfläche | ca. 723 m² |
| Etagenanzahl | 4 Etagen plus DG | Befeuerungsart | Gasbefeuerte zentrale Warmwasserheizung |
| Kaufpreis | Auf Anfrage |
| Extras | Hinterhof, Fahrradkeller, Citynahe, sehr beliebte Lage |
| Baujahr Gebäude | 1952 |
| Energieausweis |
Energieausweistyp: Verbrauchsausweis
Ausstellungsdatum: 23.02.2010 Baujahr Anlagentechnik: 1998 Energieträger: Gas Energieverbrauchskennwert: 91,20 kWh/(m²a) |
| Provision | 3,57 % inkl. 19% gesetzl. MwSt. des Kaufpreises |
| Kontakt | info@pink-immobilien.de |
bereits verkauft
*Rarität*
Herrschaftliches Stadthaus über vier Ebenen + DG mit großem Garten in Bestlage Zooviertel
Es handelt sich hierbei um eine sehr stilvolle Stadtvilla, wie sie nur äußerst selten auf dem Düsseldorfer Immobilienmarkt angeboten wird. Hier finden Sie einen Flair von einzigartiger Eleganz verbunden mit herrschaftlichem Wohngefühl vor. Die absolute Premiumlage zeichnet sich durch Ihre unmittelbare Nähe zum Zoopark wie auch durch die zentrale Citylage mit einer ausgezeichneten Infrastruktur und einem hochwertigen Umfeld mit historischer Bausubstanz aus.
Es erwartet Sie ein von uns exklusiv angebotenes Stadthaus.
| Lage | 40237 Düsseldorf Düsseltal – Schumannstraße |
|---|---|
| Wohnfläche | Stadthaus |
| Baujahr | 1927 / Teil-Wiederaufbau 1949 |
| Grundstücksfläche | ca. 500m² |
| Wohnfläche | ca. 350m² |
| Objektzustand | Heutigen Ausbaustandard nicht angepasst |
| Befeuerungsart | Gas – Zentralheizung aus dem Jahre 2005 |
| Kaufpreis | 920.000 € |
| Extras | Einfamilien- oder Generationenhaus, Sonnengarten, TOP-Lage |
| Provision | 3,57 % (inkl. gesetzl. MwSt.) |
| Kontakt | info@pink-immobilien.de |
bereits verkauft
Werden Sie ein Teil der luxuriösen Momente!
Freistehendes Einfamilienhaus mit Einliegerwohnung und Sonnengarten
Genießen Sie Ihr Familienleben auf höchstem Niveau in dem freistehenden und perfekt renovierten Einfamilienhaus mit großzügigen Wohnbereichen, Kinderzimmern und Vollbädern auf einem attraktiven Grundstück mit großen, südlich ausgerichteten Garten.
Das Kinderzimmer mit dem eigenen Balkon und einem ausgebauten Dachgeschoss, das sich über eine eigene Wendeltreppe erreichen lässt, ist ein Traum für jedes Kind.
Das Haus zeichnet sich durch viel Platz für individuelle Ansprüche aus und bietet edle Materialien, elektrische Rollläden, Wäscherutsche, Bodenbeläge aus Schiefer und Parkett sowie ein behaglicher Kaminplatz gehören nur zu einigen Details dieser Wohnqualität.
Eine zusätzliche Wertigkeit ist die ca. 70m² große Einliegerwohnung, die sich sowohl privat optimal nutzen lässt als auch eine reizvolle Finanzmöglichkeit durch Mieteinnahme ist.
Es lässt sich hier in der begehrten Lage in Unterfeldhaus (Erkrath), hinter dem Unterbacher See, mit vielen Freizeitmöglichkeiten, guter Nachbarschaft und kinderfreundlicher Umgebung sehr idyllisch und in direkter Stadtnähe wohnen.
| Lage | 40699 Erkrath Unterfeldhaus – Nähe Unterbacher See |
|---|---|
| Objekt | Freistehendes Einfamilienhaus |
| Baujahr | 1971 |
| Grundstücksfläche | ca. 491 m² |
| Wohnfläche | ca. 270 m² |
| Geschoss | Erdgeschoss, 1. Obergeschoss, plus ausgebautem Dachboden, voll unterkellert |
| Objektzustand | Sehr gut |
| Kaufpreis | 467.000 € inkl. Garage | Extras | Garage mit Carport, Garten, Terrasse, Genehmigung zum Wintergartenbau, Wäscherutsche, Einliegerwohnung, viel Stauraum, direkte Stadtnähe |
| Provision | 3,57 % (inkl. gesetzl. MwSt.) |
| Kontakt | info@pink-immobilien.de |
// Wohlfühlen garantiert \\ Maisonettewohnung mit Terrasse&Garten, Fußbodenheizung und Einbauküche und Stellplatz - Nähe der Universität!
Treten Sie ein und werden Sie Eigentümer dieser großzügig geschnittene rund 76m² großen 2-Zimmer-Maisonettewohnung mit Terrasse und eigenem Garten inmitten des pulsierenden Stadtteils Düsseldorf Bilk.
Beste Einkaufsmöglichkeiten, die Uni sowie der Rhein in direkter Nähe und doch die Ruhe in den eigenen vier Wänden erleben Sie hier.
Die großzügig gestaltete Maisonettenwohnung erstreckt sich über zwei Ebenen mit den eigenen Bereichen zum Schlafen und Wohnen.
Highlights dieser attraktiven Wohnung bilden der helle ca. 22 m² große Wohnbereich mit bodentiefen Fensterelementen und direkten Zugang zu der Sonnenterrasse und Garten und die eingepasste Einbauküche. Darüber hinaus bietet die Schlafebene ein schönes ca. 16m² Schlafzimmer und eine zusätzliche Loggia mit Abstellkammer.
Komfort wir Ihnen durch die Einbauschrankwand, Fußbodenheizung und das Wannenbad auf der Schlafebene, das separate Gäste-WC auf der Wohnebene und der hauseigene Stellplatz geboten.
| Lage | 40225 Düsseldorf, Bilk – Merowinger Straße 190 |
|---|---|
| Objekt | Eigentumsmaisonettewohnung |
| Baujahr | 1982 |
| Geschoss | Erdgeschoss |
| Wohnfläche | ca. 76 m² |
| Zimmer | 2 plus Terrasse+Garten und Keller |
| Mietnettoertrag | ca. 8.900 € Nettomiete per Anno |
| Energieausweis |
Energieausweistyp: Energieverbrauch Ausstellungsdatum: 25.3.2008 Baujahr Anlagentechnik: 1982 Energieträger: Erdgas Energieverbrauchskennwert: 162,9 kWh/(m²a) |
| Kaufpreis | Auf Anfrage / Gegen Gebot |
| Extras | Auf Anfrage Mietfrei; Einbauküche- & schrankwand, Fußbodenheizung; eigener Garten, Duplex-Stellplatz u.v.m. |
| Provision | 3,57 % (inkl. gesetzl. MwSt.) vom Kaufpreis |
| Kontakt | info@pink-immobilien.de |
PROVISIONSFREI - Maisonettewohnung mit Balkon + Parkett + 2 Bäder + Stellplatz am Rhein!
Die charmante 3-Zimmer-Maisonettewohnung begeistert in unmittelbarer Nähe des Innenstadtbereichs des Düsseldorfer Stadtteils Benrath in exklusiver Umgebung von Urdenbach nahe des Rheins, durch ihr harmonisches Raumgefühl mit Kamin und komfortablen Details zum Wohlfühlen.
Highlight der Wohnung ist der neu verlegte Echtholz-Parkettboden im attraktiven Wohnbereich mit u.a. bodentiefen Fensterelementen und dem direkten Ausgang auf den schönen, sonnigen Balkon.
Auf der ersten Wohnebene befinden sich neben dem attraktiven Wohnbereich ein geräumiges Zimmer, ein repräsentatives Wannenbad, sowie eine freundliche Küche, die ein attraktives und besonderes Raumgefühl bieten. Des Weiteren erwarten Sie ein weiteres Schlafzimmer, mit vielen praktischen Einbauschränken und dem eigenem Badezimmer en Suite auf der zweiten Ebene.
Außerdem gehört ein Doppel-Garagenstellplatz und ein großer Kellerraum zur Wohnung, sowie die Möglichkeit im Gemeinschaftskeller Waschmaschine und Trockner zu platzieren.
| Lage | 40593 Düsseldorf – Urdenbach, Urdenbacher Dorfstraße |
|---|---|
| Objekt | Eigentumsmaisonettewohnung |
| Baujahr | 1981 |
| Geschoss | 3. Obergeschoss |
| Wohnfläche | ca. 87 m² |
| Zimmer | 3, plus Terrasse und Keller |
| Mietnettoertrag | ca. 10.150 € Nettomiete per Anno |
| Energieausweis |
Energieausweistyp: Energiebedarf Ausstellungsdatum: 7.8.2008 Baujahr Anlagentechnik: 1993 Energieträger: Erdgas Energieverbrauchskennwert: 207,7 kWh/(m²a) |
| Kaufpreis | Auf Anfrage / Gegen Gebot |
| Provision | Provisionsfrei für den Käufer |
| Kontakt | info@pink-immobilien.de |
*Drususallee - Werte die bleiben- Appartement mit ca. 30m² Terrasse*
1a-Lage! Investieren Sie jetzt in das Appartement auf der beliebten Drususallee mit hoher Vermietbarkeit durch die City Lage in Neuss. Hier besticht das lang vermietete Appartement mit guten Grundrissen und lichterfüllten Räumen durch das absolute Highlight die wunderschöne ca. 30m² große Terrasse optimal zur Hof-/Gartenseite und zur Sonne gelegen. Dadurch erhält das Appartement eine enorme Aufwertung und gibt ein positives Alleinstellungsmerkmal. Profitieren Sie von der TOP Lage und schaffen Sie Vermögen mit Werten die bleiben!
| Lage | 41460 Neuss Zentrum – Drususallee |
|---|---|
| Wohnfläche | ca. 35 m² plus große Terrasse |
| Baujahr | 1960 |
| Zimmer | 1 |
| Etage | 1. OG |
| Mietnettoertrag | ca. 4.535 € Nettomiete per Anno |
| Hausgeld | ca. 100 € |
| Extras | Terrasse von ca. 30m², langjährig vermietet, TOP Lage |
| Baujahr Gebäude | 1960 |
| Energieausweis |
Energieausweistyp: Verbrauchsausweis
Ausstellungsdatum: 17.7.2008 Baujahr Anlagentechnik: 1990 Energieträger: Gas Energieverbrauchskennwert: 138,00 kWh/(m²a) |
| Kaufpreis | Auf Anfrage / Gegen Gebot |
| Provision | 3,57 % inkl. 19% gesetzl. MwSt. des Kaufpreises |
| Kontakt | info@pink-immobilien.de |
bereits verkauft
Historisches Stadthaus am Rhein - Cecilienallee
In exzellenter Wohnlage, einer der begehrtesten Wohn- und Geschäftsadressen in Düsseldorf, befindet sich dieses historische Stadtpalais. Das herrschaftliche Haus aus dem Jahr 1903 befindet sich auf einem ca. 805 m² großen Gartengrundstück mit altem Baumbestand wie Palmen und Silber-Zypressen und unverbaubarem Blick auf den Rhein.
Bei dem 2003/2004 kernsanierten Objekt handelt es sich um drei in sich abgeschlossene Wohneinheiten mit jeweils separaten Zugangsmöglichkeiten. Eine repräsentative Eingangshalle besticht durch hohe Decken mit Stuck, Holzvertäfelungen, Eichenparkett und einem wunderschönen Delfter Kamin. Im 2. und 3. OG erschließt sich die im Jahr 2006 ausgebaute Maisonette-Galeriewohnung, die durch einen 7,5 Meter hohen Sky-Light-Turm mit ihrer offenen Bauweise mit ihren Vorzügen reizt.
Das Stadthaus kann entweder als ganze Einheit oder wahlweise die Einheiten I und II (Gartengeschoss und, Hochparterre und 1. OG) bzw. Einheit III (2. OG. und Dachgeschoss) einzeln erworben werden.
| Lage | 40474 Düsseldorf Golzheim – Cecilienallee 80 |
|---|---|
| Objekt | Stadtpalais |
| Baujahr | 1903 (Ursprung) / 2004 (Entkernung) / 2006 (Neuaufstockung) |
| Grundstücksfläche | ca. 805 m² |
| Wohnfläche | ca. 740 m² |
| Geschosse | Gartengeschoss, Hochparterre & I. Obergeschoss, II. Obergeschoss und Dachgeschoss, Garage |
| Ausbaureserve | Ausbau um weitere ca. 70 m² oder einer Dachterrasse auf dem Dach möglich |
| Kaufpreis | Auf Anfrage / Wahlweise einzelner Erwerb der Wohnungen | Extras | Unverbaubarer Rheinblick, Parkartiger Garten, Original Stuckdecken, Double Jacket Decken, Holzvertäfelungen, Eisenschmiedearbeiten, Delfter Kamin, teilw. Deckenhöhe: bis 7,5 Meter, teilw. Schallschutzfenster Klasse 5 |
| Provision | 3,57 % (inkl. gesetzl. MwSt.) |
| Kontakt | info@pink-immobilien.de |
City-Apartment mit hohen Decken und Fischgrätparkett nähe Nordstraße in Derendorf
Die stilvollen Merkmale dieses 1-Zimmer-Apartments in tollem Ambiente sind das Original Fischgrätparkett, die hohen Decken und der Kronleuchter vor dem neuen großen doppelverglasten Rundfenster.
Das Badezimmer mit Wanne und Fenster wurde kürzlich modernisiert.
| Lage | 40476 Düsseldorf Derendorf – Roßstraße |
|---|---|
| Wohnfläche | ca. 32 m² |
| Zimmer | 1 plus Küche, Diele, Wannenbad, Keller |
| Etage | 1. Obergeschoss |
| Kaufpreis | Auf Anfrage (mietfrei) | Extras | Aufzug, Fischgrätparkett, Kronleuchter, Wannenbad |
| Baujahr Gebäude | 1950 |
| Energieausweis |
Energieausweistyp: Verbrauchsausweis
Ausstellungsdatum: 08.10.2008 Baujahr Anlagentechnik: 2007 Energieträger: Gas Energieverbrauchskennwert: 140,00 kWh/(m²a) |
| Provision | 3,57 % (inkl. gesetzl. MwSt.) |
| Kontakt | info@pink-immobilien.de |
bereits verkauft
Altersgerechtes Wohnen schon heute nutzen!
Komfortables Haus mit hauseigenem Aufzug und Wellness
Wohnqualität pur! In diesem Objekt setzen Sie bereits heute Akzente für ein besonderes Wohnerlebnis und erleichtern Ihnen das Wohnen im Alter.
Die Hauseinheit erstreckt sich über ca. 170m² auf zwei Ebenen mit zusätzlichem Stauraum plus Garage. Ein hauseigener Aufzug führt in die zweite Wohnebene und der nach Westen ausgerichtete großzügige Balkon bieten Menschen mit Einschränkungen in der Mobilität oder Menschen mit Behinderungen einen besonderen Wohnwert.
Die altersgerechte Konstruktion, große Fensterelemente, die viel Licht zulassen und eine hochwertige Ausstattung überzeugen und gehen damit auch auf die Bedürfnisse und Wünsche älterer Menschen oder Menschen mit Behinderungen mit Komfort und Stil ein. Ein weiteres Highlight der Wohnung: Ein Wohlfühl-Badezimmer mit Massagedusche und Eckbadewanne mit Whirlpoolfunktion.
Sichern Sie sich Wohnqualität für heute und morgen! Investieren Sie in Ihre private Altersvorsorge mit einem Eigenheim im Grünen und dennoch direkter Stadtnähe und Mittelpunkt in Erkrath.
| Lage | 40699 Erkrath – Schinkelstraße |
|---|---|
| Objekt | Hauseinheit |
| Baujahr | 2002 |
| Grundstück anteilig | ca. 285 m² |
| Wohnfläche | ca. 170 m² |
| Geschoss | Erdgeschoss, 1. Obergeschoss, plus Dachboden |
| Objektzustand | Sehr gut |
| Kaufpreis | 233.000 € zzgl. Garage | Extras | Garage, hauseigener Aufzug, Balkon, Fußbodenheizung, videoüberwacht, altersgerechtes wohnen, viel Stauraum, direkte Stadtnähe |
| Provision | 3,57 % (inkl. gesetzl. MwSt.) |
| Kontakt | info@pink-immobilien.de |
Aktuelles Angebot
Zukunft kaufen: Geringe Haus- und Heizkosten mit hohem Eigennutzwert und hoher Vermietbarkeit
*Günstiger zu kaufen - als zu mieten* Ein Tiefgaragenstellplatz ist im Kaufpreis enthalten.
Die gemütliche Dachgeschoss-Wohnung ist modernisiert und bietet neben hochwertigen Laminatböden, neuen Heizkörpern auch hohe Wände, einen großen Wohnraum mit ca. 20m² und einem Nord/West Sonnen-Balkon mit Ausblick ins Grüne. Die optisch schönen Sichtbalken in Schlafzimmer und Wohnraum vermitteln der Wohnung einen einzigartigen, gemütlichen Touch.
| Lage | Düsseldorf, Unterrath, Beedstraße |
|---|---|
| Wohnfläche | ca. 44 m² |
| Zimmer | 2 |
| Etage | 3. OG = DG |
| Kaufpreis | auf Anfrage |
| Hausgeld | 120 € |
| Extras | Balkon, Laminat, modernisiert |
| Baujahr Gebäude | 1980 |
| Energieausweis |
Energieausweistyp: Verbrauchsausweis
Ausstellungsdatum: 09.7.2009 Baujahr Anlagentechnik: 1989 Energieträger: Gas Energieverbrauchskennwert: 153,00 kWh/(m²a) |
| Provision | 3,57 % inkl. 19% gesetzl. MwSt. des Kaufpreises |
| Kontakt | info@pink-immobilien.de |
bereits verkauft
Exklusives Wohnen mit besonderem Flair im begehrten Düsseldorfer Zooviertel
Große Penthouse-Maisonette-Wohnung mit Schwimmbad, Sauna, Fitness und einem idyllischen Garten
Die repräsentative ca. 253 m² große Penthouse-Maisonette-Wohnung im 4. und 5. Obergeschoß des edlen Mehrfamilienhauses besticht durch ihre Innenarchitektur und besonders großzügigen Wohnverhältnisse.
In der unteren Ebene der Penthouse-Wohnung befindet sich der großzügige Wohnbereich und Küche sowie ein Schlafzimmer mit luxuriösem Marmorbad en Suite. Die anliegenden eindrucksvollen Terrassen geben einen Ausblick in den idyllischen parkähnlichen Garten in Süd/West-Richtung. Desweiteren wird Ihnen in dieser Ebene eine nach vorn ausgerichtete Terrasse geboten.
Über die innenliegende Treppe erreichen Sie in der oberen Ebene zwei weitere Schlafräume, Ankleidezimmer und zwei Bäder. Das Bad en Suite in der oberen Ebene reizt durch besonders exklusive Ausstattung.
Auch für Ihren Fuhrpark ist mit zwei dazugehörigen Tiefgaragenstellplätzen gesorgt.
Das Objekt selbst befindet sich in einer begrünten Anliegerstraße im Herzen von Düsseltal umringt von Freytag-, Friedrich-Springorum- und Tiergartenstraße. Hier ist die Lage geprägt durch breite Straßen mit beidseitiger Baumbepflanzung und herrschaftlichen Villen.
In diesem Domizil bedienen Lage, der hauseigene Wellnessbereich mit Schwimmbad, Sauna sowie Fitnessbereich die Ansprüche von Menschen, denen gerade Wohnqualität und somit Lebensqualität am Herzen liegt.
| Lage | 40237 Düsseldorf Düsseltal (Zoo) – Tiergartenstraße |
|---|---|
| Baujahr | 1973 |
| Wohnfläche | ca. 253 m² auf zwei Ebenen |
| Zimmer | 5 + Terrassen |
| Etage | 4. + 5. Obergeschoss mit Aufzug |
| Kaufpreis | 990.000 € (mietfrei) | Extras | Alarmanlage, Jalousien, 2 Tiefgaragenstellplätze, Schwimmbad & Sauna & Fitnessraum, Fahrradraum, Waschkeller, etc. |
| Provision | 3,57 % (inkl. gesetzl. MwSt.) |
| Kontakt | info@pink-immobilien.de |
bereits verkauft
*Im Herzen des Medienhafens* Möblierte großzügige 3-Zimmer-Wohnung mit großem Balkon
Die im 1. Obergeschoss (mit Aufzug) gelegene, voll möblierte Wohnung besticht durch ihre Gemütlichkeit und exzellente Lage. Hier wird Wert auf Sauberkeit und viel Wohnqualität gelegt. *Hotelalternative — Zweitwohnung — Wohnen auf Zeit = Die perfekte Business-Wohnung!*
| Lage | Düsseldorf-Medienhafen, Brückenstraße |
|---|---|
| Wohnfläche | ca. 89 m² |
| Zimmer | 3 |
| Etage | 1. OG mit Aufzug | Mietnettobetrag | ca. 15.850 € |
| Extras | Balkon, Einbauküche, großzügig, TOP Lage |
| Kaufpreis | 200.000 € |
| Provision | 3,57 % (inkl. gesetzl. MwSt.) |
| Kontakt | info@pink-immobilien.de |
bereits verkauft
Wohngenuss mit Weitblick!
Doppelhaushälfte als Zweifamilienhaus +Erdgeschosswohnung mit großem Garten zur Eigennutzung *AM SEEBLICK--UNTERBACH*
Düsseldorf-Unterbach, steht jetzt eine Doppelhaushälfte genutzt als Zweifamilienhaus für Sie zum Kauf. Verwirklichen Sie Ihren Traum und beziehen Sie selber die ca. 100m² große Erdgeschoss Wohnung mit dem wunderschönen großen Garten, Terrasse und Garage. Zu dem sehr gepflegten Haus, befindet sich auf dem insgesamt ca. 633m² großen Grundstück hinter dem Haus ein langer, südlich ausgerichteter Garten mit zwei Terrassen und Gartenhäuschen, in dem Sie besonders die Sommertage genießen können. Das Objekt liegt in traumhafter ruhiger und doch sehr zentraler Lage in einer gestandenen Wohnsiedlung.
++Das beschauliche Haus ist ein wunderschöner Rückzugsort und bietet altbewährtes Wohnen für Familien mit Kindern++
| Lage | 40627 Düsseldorf Unterbach – Am Seeblick |
|---|---|
| Wohnfläche | Doppelhaushälfte |
| Baujahr | 1956 |
| Grundstücksfläche | insg. ca. 633m² |
| Wohnfläche | ca. 200m² |
| Objektzustand | modernisiert |
| Befeuerungsart | Gas - Zentralheizung |
| Kaufpreis | 378.000 € |
| Extras | Zweifamilien-/Generationenhaus, Sonnengarten, Garage, TOP Lage |
| Provision | 3,57 % (inkl. gesetzl. MwSt.) |
| Kontakt | info@pink-immobilien.de |
bereits verkauft
++ Kleines Immobilienpaket: TOP Rendite SICHER & WERTBESTÄNDIG! In gefragter City-Lage++ (Anlageobjekte)
Interesse an einem überzeugenden Immobilien-Parket? Investieren Sie in kleine Einheiten zwischen 35 – 45 m² mit hoher Vermietbarkeit bedingt durch City Lage. Für Sie zum Erwerb stehen in Düsseldorfs beliebten Stadtteil Flingern-Süd je 2 Wohnungen in 2 Häusern. Zum Paketpreis!
| Lage | Düsseldorf, Flingern-Süd, Krahestraße / Gerresheimerstr. |
|---|---|
| Wohnfläche | ca. 37 m² |
| Zimmer | 1 |
| Etage | 3. = DG / 1. OG / EG |
| Kaufpreis | 165.000 € / Paketpreis |
| Hausgeld | ca. 150 € |
| Extras | modernisiert |
| Provision | 3,57 % inkl. MwSt. |
| Kontakt | info@pink-immobilien.de |
bereits verkauft
Jetzt: **Starter-Investment: 40m² EG-Wohnung mit Balkon in gefragter City Lage** Richtig investiert!
-Starter-Investment-
Die großzügige 1-Zimmer Erdgeschoss-Wohnung bietet individuelles Wohnen auf ca. 40m ², aufgeteilt in eine geräumige Wohnküche, einem Wohn- bzw. Schlafraum, Diele mit Abstellraum, einem Duschbad/WC sowie Balkon und einem Kellerraum. Die Wohnung ist vermietet und die Kaltmieten Netto belaufen sich ohne Eigennutzung, auf insgesamt 2.880,00 EUR per anno (Ist).
| Lage | Düsseldorf, Flingern-Süd, Gerresheimerstraße |
|---|---|
| Wohnfläche | ca. 40 m² |
| Zimmer | 1 |
| Etage | EG |
| Kaufpreis | 37.000 € oder zum Paketpreis |
| Hausgeld: | 160 € |
| Extras | Balkon, modernisiert |
| Provision | 3,57 % inkl. MwSt. |
| Kontakt | info@pink-immobilien.de |
bereits verkauft
Individuelle Stadtwohnung in bester Lage am Hofgarten und Kunst Palast am Rhein
Die ca. 228 m² große Erdgeschoss-Wohnung bietet nicht nur ein hohes Maß an Individualität sondern auch eine der begehrtesten Citylagen in Düsseldorf direkt am Hofgarten, dem Kunstpalast, das älteste Ausstellungsgebäude Düsseldorfs und am Rhein mit dem pulsierenden Leben der Innenstadt.
Das 1983 gebaute lichtdurchflutete Wohnatelier, das höchste Ansprüche an Qualität und Wohnwert erfüllt, befindet sich in einem Anbau der Wohneinheit, wodurch ein eigener Hauscharakter entsteht. Ein besonderes Extra: Lassen Sie sich durch zwei malerische Innenhöfe/ Atrien begeistern, in denen Sie auf je ca. 24 m² Ihre private Wohlfühloase schaffen können.
Die Wohneinheit, die bislang als Atelier genutzt wurde, ist sowohl zum Arbeiten als auch zum Wohnen geeignet. Durch die nicht tragenden Wände können Sie den Grundriss flexibel an Ihre individuellen Bedürfnisse anpassen. Die Gas-Fußbodenheizung bietet Ihnen einen behaglichen Wohnkomfort. Ein Kellerraum und die Einzelgarage runden das ansprechende Angebot ab.
| Lage | 40479 Düsseldorf Pempelfort – Scheibenstraße |
|---|---|
| Objekt | Stadtwohnung |
| Baujahr | 1983 |
| Wohnfläche | ca. 227 m² |
| Geschoss | Erdgeschoss, plus Keller, plus Garage |
| Objektzustand | Nach Absprache |
| Kaufpreis | 570.000 € | Extras | 2 Innenhöfe/ Atrien, bodentiefe Aluminiumfenster, Eingangsbereich in weißem Marmor, doppelte Decken, Fußbodenheizung, Garage, TOP Lage |
| Provision | 3,57 % (inkl. gesetzl. MwSt.) |
| Kontakt | info@pink-immobilien.de |
bereits verkauft
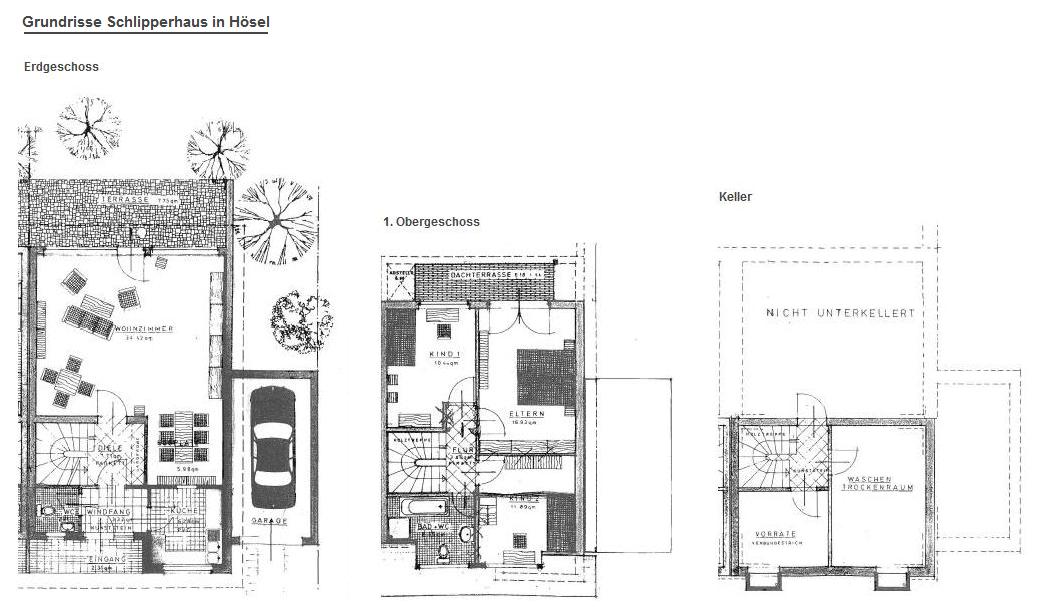
Lichtdurchflutetes Einfamilienhaus mit viel Potential für die Familie in Hösel
Lassen Sie Ihren Wünschen und Phantasie freien Lauf!
Die lichtdurchflutete ca. 120 m² (derzeit Wohnfläche) große Doppelhaushälfte lädt mit einem Erdgeschoss, 1. Obergeschoss und ein ausbaufähiger Dachboden sowie einem Keller mit Waschraum und Vorratsbereich zum Verweilen ein.
Das Highlight des Hauses ist der 35 m² große und lichtdurchflutete Wohn- und Essbereich mit Panoramafenster, das den Blick über die Terrasse in den Garten eröffnet. Von hier aus betreten Sie auch die Sonnenterasse die mit dem Garten nach Westen ausgerichteten ist.
Ganz nach Ihren individuellen Vorstellungen kann das Haus in Ihr Eigenheim verwandelt werden, das citynah und trotzdem mitten in der Natur ist. Die variablen Grundrisse machen es möglich! Mit perfekter Lage am Ortskern und direkt am Rande des Landschaftsschutzgebietes mit unmittelbaren Zugang zum Wald.
| Lage | 40883 Ratingen Hösel – Schlipperhaus 9 |
|---|---|
| Objekt | Doppelhaushälfte als Einfamilienhaus |
| Baujahr | 1973 |
| Grundstücksfläche | ca. 304 m² |
| Wohnfläche | ca. 120 m² (derzeit) = Erdgeschoss+1.Obergeschoss |
| Geschosse | Kellergeschoss, Erdgeschoss, 1.Obergeschoss, Dachgeschoss, Garage | Objektzustand | Renovierungsbedürftig |
| Kaufpreis | 354.000 € |
| Extras | Sonnengarten & Terrasse nach Westen, Garage, TOP Lage |
| Provision | 3,57 % (inkl. gesetzl. MwSt.) |
| Kontakt | info@pink-immobilien.de |
bereits verkauft
Generationen-Wohnen * Wohnlandschaft: 2 Wohnungen zzt. zusammengelegt -- zu EINEM Preis!*
-Ein verborgener Schatz-
Verwirklichen Sie Ihren Lebenstraum über den Dächern und renovieren Sie die 2 Wohnungen im Penthouse Stil nach Ihren eigenen Vorstellungen und Wünschen. Die großzügig geschnittenen Wohnungen mit viel Raum sind zurzeit zusammenlegt zu einer weitläufigen Wohnung. Auch um wieder zwei Wohnungen zu schaffen, bedarf es keinen großen Aufwand.
| Lage | Ratingen-Süd, Lochnerstraße |
|---|---|
| Wohnfläche | ca. 145 m² |
| Zimmer | 6 |
| Etage | 8 |
| Kaufpreis | 160.000 € |
| Hausgeld | insg. 500 € inkl. Heizung |
| Extras | Personenaufzug, 2 Keller, 2 Balkone, 2 Stellplätze |
| Provision | 3,57 % inkl. MwSt. |
| Kontakt | info@pink-immobilien.de |
Gewährleistung:
Alle Exposés wurden anhand der uns vom Eigentümer genannten Angaben bzw. übergebenen Unterlagen erstellt, für deren Vollständigkeit und Richtigkeit wir keine Gewähr übernehmen. Diese Exposés sind eine Vorinformation, als Rechtsgrundlage gilt allein der Kaufvertrag. Die Weitergabe der Angebote an Dritte ist ohne unsere ausdrückliche Genehmigung nicht erlaubt. Bei Zuwiderhandlung haften Sie für die uns entgangene Provision. Bei steuerlichen Fragen weisen wir auf die Notwendigkeit einer Überprüfung durch den Steuerberater hin. Grundrisse sind nicht maßstabsgerecht.


























































































































































































































































