Vermietung
Wohnungen bis 120m²
vermietet
Exklusive Maisonette-Wohnung -möbliert- für Design- und Architekturfans in Düsseldorf Carlstadt
Herzlich Willkommen zu Ihrer exklusiven Gelegenheit in der begehrten Carlstadt von Düsseldorf.
Diese besondere, möblierte Maisonette-Wohnung befindet sich in einer der besten Wohnlagen Düsseldorfs, der beliebten Carlstadt. Der Rhein, der Carlsplatz sowie die berühmte Königsallee liegen in unmittelbarer Nachbarschaft und laden zu Spaziergängen und exquisiten Einkaufs-, Restaurant- und Kulturerlebnissen ein.Die Wohnung besticht durch ihre komplett neue Möblierung, inklusive elektrischer, ausfahrbarer Designer-Sitz- und Schlafmöbel sowie einer modernen Klimaanlage für maximalen Komfort. Erleben Sie Design auf ca. 100 m² Wohnfläche, mit Aufzug und zwei Balkonen – einer mit Blick auf den idyllischen Schwanenspiegel und der andere zum ruhigen Innenhof. Die offene Wendeltreppe im Wohnraum, eine hochwertige Einbauküche mit vorgelagertem Essbereich und einem offenen Kamin -der Eyecater-. Sicher werden Kunstliebhabern und Architekturfans hier die Besonderheiten direkt ins Auge fallen.
Auf der oberen, privaten Ebene erwartet Sie ihr Master-Schlafzimmer mit integrierter Ankleide und Bad En Suite mit bodentiefer Dusche und Badewanne wie Washlet: die High-End-Toilette. Sowie ein weiteres Zimmer, ideal als Office, mit bodentiefem Fenster mit Blick auf das Wahrzeichen der Stadt: den Rheinturm.
Diese exklusive Maisonette-Wohnung bietet Ihnen ein durchdachtes Design- und Lichtkonzept sowie einem neuen Internet-Anschluss etc. Optional steht Ihnen auch ein Reinigungsservice zur Verfügung, sowie weitere Vorzüge.
Die Fußbodenheizung ist gerade in Verbindung mit dem edlen Schiefer-Bodenbelag wirkungsvoll und gibt ein behagliches Wohnklima.
Ein großer Kellerraum und Waschraum mit neuer Waschmaschine und Trockner sind vorhanden.
Diese seltene Gelegenheit, eine Wohnung in der Carlstadt anzumieten, richtet sich an anspruchsvolle Mieter, die Exklusivität und Design zu schätzen wissen.
Vereinbaren Sie noch heute Ihren persönlichen Besichtigungstermin und lassen Sie sich von diesem einzigartigen Angebot überzeugen!
| Lage | 40213 Düsseldorf Carlstadt – Poststraße |
|---|---|
| Objekt | Luxus- Maisonetten-Wohnung *möbliert* |
| Wohnfläche | ca. 100 m² |
| Zimmer | 2 Schlafzimmer plus offener Wohnbereich mit Küche, Master-Bad & Gäste-WC, Hauswirtschaftsraum, 2 Balkone, Keller |
| Etagen | Maisonetten 4. Obergeschoss und Dachgeschoss links mit Aufzug |
| Highlights | Neu möbliert u.a. mit elektrischen, ausfahrbaren Designermöbeln, Einbauküche, offener Kamin, Klimaanlage, Balkon nach vorne zum Schwanenspiegel sowie zum Innenhof, Bad En Suite mit bodentiefer Dusche und Badewanne wie Washlet: die High-End-Toilette, Design- und Lichtkonzept, großer Kellerraum und Waschraum mit neuer Waschmaschine und Trockner, neuer Internet-Anschluss, auf Wunsch mit Reinigungsservice etc. |
| Miete | € 2.500,00 |
| Betriebskosten - Vorauszahlung | € 400,00 |
| Warmmiete | € 2.900,00 |
| Frei ab | Sofort zur Anmietung |
| Baujahr Gebäude | 1981 |
| Energieausweis | Energieausweistyp: Verbrauchsausweis Baujahr Gebäude: 1981 Baujahr Wärmeerzeuger: 2003 Energieeffizienzklasse: D Energieträger: Erdgas; Energieverbrauchskennwert: 129,4 kWh/(m²a) Energieausweis: liegt vor |
| Kontakt | info@pink-immobilien.de |
Aktuelles Angebot
Erstklassige Maisonettewohnung in TOP Wohnlage von Flingern am Cranachplatz mit zwei Sonnenbalkonen, Kamin, Einbauküche und vielen Einbauschränken usw.
Werden Sie jetzt Mieter dieses ca. 112 m² großen hochwertig ausgestatteten Wohn(t)raums in Mitten von Düsseldorf. Perfekt eingerichtet und extrem gut gepflegt!
Großzügiges Wohnen, lichtdurchflutete Räume, bodentiefe Fensterelemente – erleben Sie das ganz besondere Raumgefühl!
Perfekt dabei - die hochwertige Einbauküche mit modernen Glasfronten!
HIGHLIGHT ist der ca. 47 m² große Wohn-/Essbereich mit Kamin und Balkon zu beiden Seiten: viel Platz für Sie & Ihre Gäste.
Hochwertigste Materialien und Ausstattungselemente, Aufzug, Fußbodenheizung, Kamin, Einbauschränke – hier bleiben keine Wünsche offen.
| Lage: | 40235 Düsseldorf, Flingern – Cranachstraße |
|---|---|
| Wohnfläche | ca. 112 m² |
| Zimmer | 3 |
| Etagen | 6 und 7 |
| Kaltmiete | € 1.989 |
| Betriebskosten - Vorauszahlung | € 220 |
| Heizkosten - Vorauszahlung | € 130 |
| Warmmiete | € 2.339 |
| Extras | Hochwertige Einbauküche (Nutzung in der Miete bereits enthalten), Badezimmer mit Dusche und Wanne, Gäste-WC, Abstellbereiche, Kamin, Aufzug - den man tatsächlich aus der Wohnung heraus nicht hört - und der auch das Kellergeschoss anfährt |
| Verbrauchsorientierter Energieausweis | Der erfasste Energieverbrauch des Gebäudes liegt bei 177,3 kWh (m²-a) mit der Gas-Zentralheizung aus dem Jahr 2006. Somit wird das Gebäude als energetisch gut modernisiert eingestuft. |
| Kontakt | info@pink-immobilien.de |
Aktuelles Angebot
Charmante 2,5-Zimmer-Wohnung mit Balkon in absoluter Citylage *Pempelfort* mit Parkett und Einbauküche
In einer der begehrten Wohngegenden nahe Rhein und Hofgarten liegt diese rund 89 m² große Balkonwohnung im 3. Obergeschoss eines charakteristischen Altbaus aus dem Jahr 1910.
Mittelpunkt dieser attraktiven Wohnung ist der lichtdurchflutete Wohnraum mit angrenzendem Balkon, großen Fensterelementen und Parkettboden. Highlight ist der schöne Balkon zur Hofseite, der Ihnen schöne Stunden in der Landeshauptstadt verspricht.
Begeistern wird Sie auch die attraktive und geräumige Küche Wohnküche mit Einbauküche, Tresen und Essbereich, die fließend in das Wohnzimmer übergeht.
GESCHENK FÜR SIE: Nehmen Sie sich Zeit, um sich wohnlich einzurichten. Dabei können Sie sich ganz auf die wesentlichen Dinge konzentrieren, denn die voll ausgestattete Einbauküche ist optimal eingepasst und wird Ihnen geschenkt! Natürlich können Sie auch Ihre Einbauküche installieren.
Das modernisierte Wannen- Badezimmer mit großem Fenster verfügt auch über einen Anschluss für die Waschmaschine. Sie können gleichwohl auch im Gemeinschaftswaschkeller des Hauses waschen und den vorhandenen Trockenraum für Ihre Wäsche nutzen.
Die Wohnung befindet sich in einer ruhigen Seitenstraße und gleichzeitig TOP Wohnlage direkt im Herzen des pulsierenden Stadtteils Düsseldorf-Pempelfort.
| Lage: | 40477 Düsseldorf, Pempelfort – Gneisenaustraße |
|---|---|
| Wohnfläche | 87,36 m² |
| Zimmer | 2,5 |
| Etage | 3. Obergeschoss, vorne |
| Kaltmiete | € 1.195,00 |
| Betriebskosten + Heizkosten | € 200,00 |
| Gesamtmiete inkl. Betriebskosten | € 1.395,00 |
| Extras | Balkon zum Hinterhof, Parkettboden, Einbauküche, modernes Bad, Kellerraum, Fahrradraum, gemeinschaftlicher Wasch- und Trockenraum |
| Energieausweis | Energieausweistyp: Verbrauchsausweis Ausstellungsdatum: 19.01.2015 Baujahr Haus: 1905 san. 1990 - 2010 Baujahr Anlagentechnik: 1990 Energieträger: Erdgas LL Energieverbrauchskennwert: 128,2 kWh/(m²a) |
| Kontakt | info@pink-immobilien.de |
Helle, frisch modernisierte 4-Zimmer-Wohnung mit Parkett, 2 Balkonen, Gartennutzung + TG-Platz im beliebten Szeneviertel von Flingern-Nord.
Wohnen vis-à-vis der bekannten Ackerstraße
Treten Sie ein – in diese komfortable, großzügige und frisch modernisierte Wohnung in Düsseldorfs Szeneviertel Flingern-Nord!
Den Mittelpunkt dieser ca. 115 m² großen Wohnung bildet das geräumige Wohn- und Esszimmer mit direktem Balkonzugang.
Drei Schlafzimmer und zwei Bäder bieten reichlich Platz zur individuellen Gestaltung. Lichtdurchflutete Räumlichkeiten heißen Sie hier willkommen; Balkone und Gemeinschaftsgarten laden zum Entspannen ein!
Hochwertige Granit- und Echtholzparkettböden, ausgewählte Elektroinstallationen wie Lichtspots und Steckdosen mit Glasrahmen sowie gehobene Ausstattung mit Glastüren und Einbauschränke gehören zur komfortablen Ausstattung dieser Wohnung.
Dazu mieten Sie exklusiv ein Tiefgaragenstellplatz im Haus!
Flingern-Nord ist einer der beliebtesten Stadtteile der Landeshauptstadt. Junge Modelables treffen hier auf alteingesessene, inhabergeführte Geschäfte; kleine Cafés und Ecklokale sind ebenso en vogue wie Restaurants, die nach einem Stern greifen. Dieses lebendige Viertel hat für Singles, Paare und Familien gleichermaßen viel zu bieten.
| Lage: | 40233 Düsseldorf Flingern - Nord; Hermannstraße |
|---|---|
| Wohnfläche | ca. 115 m² |
| Zimmer | 4 |
| Etage | 1. Obergeschoss links |
| Kaltmiete | € 1.230,- |
| Nebenkosten - Vorauszahlung | € 140,- |
| Heizkosten - Vorauszahlung | € 115,- |
| Warmmiete | € 1.485,- |
| Tiefgaragenstellplatz | € 90 ,- |
| Extras | Frisch renoviert, Parkett- und Granitböden, Einbauschränke, Tiefgaragenstellplatz, Kellerraum, Fahrradraum , gemeinschaftlicher Trockenraum & Gartennutzung |
| Energieausweis | Energieausweistyp: Verbrauchsausweis Ausstellungsdatum: 25.08.2009 Baujahr Haus: 1981 Baujahr Anlagentechnik: 1981 Energieträger: Fernwärme Energieverbrauchskennwert: 142 kWh/(m²a) |
| Kontakt | info@pink-immobilien.de |
aktuelles Angebot
Herzlich Willkommen im Gut Clef in Ihrem beeindruckendem Rückzugsort
Erleben Sie außergewöhnliches Wohnen auf höchstem Niveau in der begehrten Wohngegend von Erkrath Hochdahl. Diese beeindruckende Dachgeschosswohnung im Haus „Gut Clef 2“ kombiniert moderne Architektur, bietet Ihnen viel Licht und hat Weitblick! -ein täglicher Genuss-
Mit einer berechneten Wohnfläche von ca. 102 m² bei einer tatsächlichen Gesamtfläche von ca. 126 m² überzeugt diese außergewöhnliche Wohnung mit lichtdurchfluteten Räumen, einem eleganten Master-Badezimmer en-suite, einem spektakulären Ausblick und stilvoller Architektur – ein ganz besonderes Mietangebot!
In einer der begehrtesten Lagen von Erkrath Hochdahl schaffen die umliegenden unter Denkmalschutz gestellten Häuser und die exklusive Nachbarschaft ein hochwertiges Umfeld für Ihr neues Zuhause.
Genießen Sie Spaziergänge und sportliche Aktivitäten in der Natur, ohne auf die Vorzüge einer zentralen Lage verzichten zu müssen.
Die Kombination aus historischer Umgebung, lebendigem Gemeinschaftsleben und bester Erreichbarkeit macht die Nachbarschaft von Gut Clef zu einem begehrten Wohnort in Erkrath.
Der Energieausweis für dieses Gebäude bestätigt einen äußerst niedrigen Energieverbrauch von nur 21,1 kWh mit der besten Bewertung A+.
Genießen Sie den Erstbezug und die Möglichkeit, Ihr Zuhause nach Ihren individuellen Vorstellungen zu gestalten. Sichern Sie sich diese außergewöhnliche Wohneinheit mit Weitblick – vereinbaren Sie noch heute Ihren persönlichen Besichtigungstermin!
Vereinbaren Sie noch heute Ihren persönlichen oder virtuellen Besichtigungstermin!
Wir freuen uns darauf, Ihnen das Haus im Detail vorzustellen und gemeinsam mit Ihnen all Ihre Fragen zu beantworten.
| Lage: | 40699 Erkrath – Gut Clef |
|---|---|
| Objekt: | Dachgeschosswohnung |
| Wohnfläche | ca. 102 m² |
| Zimmer | Wohnbereich mit offener Küche, 2 Schlafzimmer, Master-Bad & Gäste-WC, Dachflächen, etc. |
| Etagen | 2. Obergeschoss |
| Highlights | Erstbezug, modern, Nutzfläche ca. 126 m², Energieeffizienzklasse: A+, usw. |
| Miete | € 1.193,- |
| Betriebskosten- Vorauszahlung |
€ 200,00 |
| Warmmiete | € 1.393,- |
| Garage | Nach Vereinbarung |
| Frei ab | Sofort zur Anmietung |
| Baujahr Gebäude |
1992 |
| Energieausweis | Energieausweistyp: Verbrauchsausweis Baujahr Gebäude: 1992 Baujahr Wärmeerzeuger: 1992 Energieeffizienzklasse: A+ Energieträger: Heizöl; Energieverbrauchskennwert: 21,1 kWh/(m²a) Energieausweis: liegt vor |
| Kontakt | info@pink-immobilien.de |
Traumwohnung anzumieten
Anspruchsvolles Wohnen im wunderschönen Altbau in Pempelfort
Die Wohnung besticht mit seinem vorteilhaften Grundriss und der exzellenten Lage, die jeglichem Anspruch an Moderne und Flexibilität gerecht wird.
Die Ausstattung der Wohnung überzeugt durch hochwertige Parkettböden, hohe Wände, große Kassettentüren und Stuckelemente an den Decken. Bodentiefe und große Fenster in allen Wohnbereichen sorgen für eine lichtdurchflutete Atmosphäre. Erst kürzlich wurde die Wohnung stilvoll für Sie saniert.
Profitieren Sie hier von der TOP City-Wohnlage und den ZWEI Balkonen!
| Lage: | Düsseldorf, Pempelfort, Winkelsfelder Str. 10 |
|---|---|
| Wohnfläche | ca. 100 m² |
| Zimmer | 3 |
| Etage | 3. Obergeschoss |
| Kaltmiete | 1.244 € |
| Betriebskosten | 94,00 € |
| Warmmiete | 1.338,00 € |
| Extras | 2 Balkone, Parkett, Bulthaupt Edelstahlküche und vieles mehr |
| Baujahr Gebäude |
1900 |
| Energieausweis | Energieausweistyp: Bedarfssausweis; Ausstellungsdatum: 4.4.2014; Baujahr Anlagentechnik: unterschiedliche Baujahre; Energieträger: Erdgas; Energieverbrauchskennwert: 194,5 kWh/(m²a) |
| Kontakt | info@pink-immobilien.de |
Traumwohnung anzumieten
Anspruchsvolles Wohnen im wunderschönen Altbau in Pempelfort
Die Wohnung besticht mit seinem vorteilhaften Grundriss und der exzellenten Lage, die jeglichem Anspruch an Moderne und Flexibilität gerecht wird.
Die Ausstattung der Wohnung überzeugt durch hochwertige Parkettböden, hohe Wände, große Kassettentüren und Stuckelemente an den Decken. Bodentiefe und große Fenster in allen Wohnbereichen sorgen für eine lichtdurchflutete Atmosphäre. Erst kürzlich wurde die Wohnung stilvoll für Sie saniert.
Profitieren Sie hier von der TOP City-Wohnlage und den ZWEI Balkonen!
| Lage: | Düsseldorf, Pempelfort, Winkelsfelder Str. 10 |
|---|---|
| Wohnfläche | ca. 100 m² |
| Zimmer | 3 |
| Etage | 3. Obergeschoss |
| Kaltmiete | 1.244 € |
| Betriebskosten | 94,00 € |
| Warmmiete | 1.338,00 € |
| Extras | 2 Balkone, Parkett, Bulthaupt Edelstahlküche und vieles mehr |
| Baujahr Gebäude |
1900 |
| Energieausweis | Energieausweistyp: Bedarfssausweis; Ausstellungsdatum: 4.4.2014; Baujahr Anlagentechnik: unterschiedliche Baujahre; Energieträger: Erdgas; Energieverbrauchskennwert: 194,5 kWh/(m²a) |
| Kontakt | info@pink-immobilien.de |
*INDIVIDUELL* Traumhafte Galerie-Wohnung mit Loggia in super Lage!
Das wunderschöne Haus liegt in dem Teil der Kirchfeldstraße, in dem sich herrliche Häuser aus der Gründerzeit aneinander reihen. Hier überzeugt die Wohnung mit dem offen gestalteten Wohnzimmer zum Essbereich und Küche geöffnet zur Galerie, das weitere Schlafzimmer, die großzügige Diele wie die Loggia und natürlich die hervorstechende Individualität.
| Lage | 40215 Düsseldorf Friedrichstadt – Kirchfeldstraße |
|---|---|
| Wohnfläche | ca. 105 m² |
| Zimmer | 2 + Galerie |
| Etage | 4. Obergeschoss (ohne Aufzug) | Miete | 792,00 € |
| Betriebskosten | 110,00 € |
| Heizkosten | 85,00 € |
| Warmmiete | 987,00 € |
| Extras | Galerie, Loggia, renoviert |
| Baujahr Gebäude | 1905 |
| Energieausweis | Energieausweistyp: Verbrauchsausweis Ausstellungsdatum: 30.4.2014 Baujahr Anlagentechnik: 2002 Energieträger: Öl Energieverbrauchskennwert: 107,00 kWh/(m²a) |
| Kontakt | info@pink-immobilien.de |
Sonnige Aussichten: Moderne Dachgeschoss-Maisonetten-Wohnung mit Sonnenbalkon in TOP-Lage von Derendorf
In der TOP Wohngegend von Derendorf ist diese attraktive im 4. (Dach-)Geschoss gelegene moderne 3-Zimmer-Wohnung für Sie zu mieten.
Hier im gepflegten Mehrfamilienhaus überzeugt die charmante Wohnung mit dem offen gestalteten Wohnzimmer mit Essbereich und Küche, wie der (südliche) Sonnenbalkon, Ankleidezimmer, Diele, Dusche & Wannenbad mit Fenster sowie auf der oberen Ebene mit zwei Zimmern und natürlich die hervorstechende Individualität.
Der wahre Höhepunkt bildet das großzügige Wohnzimmer mit seinem Blickfang zum Sonnenbalkon und der Wendeltreppe, die auf die obere Maisonette-Etage führt. Begeistern wird Sie besonders die offen gestaltete Wohnküche = Ein gelungenes Ambiente für Kochabende mit der Familie oder ihren Freunden. Die optimal eingepasste Einbauküche kann gegen einen Abstand von den jetzigen Mietern übernommen werden.
Die optisch schönen Sichtbalken sorgen hier für einen einzigartigen, wohnlichen Charme und die Schrägen, die nicht in die Wohnfläche einberechnet sind, vermitteln ein deutlich größeres Raumgefühl als die ca. 103 m² Wohnfläche vermuten lassen.
| Lage | 40476 Düsseldorf Derendorf – Glockenstraße |
|---|---|
| Wohnfläche | ca. 103 m² |
| Zimmer | 3 + Ankleide und Balkon |
| Etage | 4. Obergeschoss o.A. | Miete | 1.427,00 € |
| Betriebskosten | 150,00 € inkl. Heizkosten bei 2 Personen |
| Warmmiete | 1.577,00 € |
| Extras | Maisonette, Sonnenbalkon, begebbarer Kleiderschrank, sep. Wanne & Dusche, EBK auf Wunsch |
| Baujahr Gebäude | 1994 |
| Energieausweis | Energieausweistyp: Verbrauchsausweis Ausstellungsdatum: 10.4.2018 Baujahr: 1930, Modernisierung: 1994 Energieträger: Gas Energieverbrauchskennwert: 102,5 kWh/(m²a), Klasse D |
| Kontakt | info@pink-immobilien.de |
Neu sanierte Altbauwohnung mit hohen Stuckdecken in zentraler Wohnlage von Oberbilk
Willkommen in dieser schönen 3,5-Zimmer großen Altbauwohnung inmitten der schönen Lage von Oberbilk in der Nähe des neuen Gerichtsgebäudes und an dem Bahnhof Oberbilk an der Mitsubishi Electric Halle, die frühere Philippshalle. Die großzügig geschnittene und erst kürzlich komplett sanierte Altbauwohnung im 1. Obergeschoss ist für Sie frei zum mieten.
Das Highlight der Wohnung sind die vorhanden Stuckelemente und hohen Decken mit dem großzügigen Mittelpunkt: das Wohn- und Esszimmer. Zusätzliche Eleganz erhält die Wohnung durch das moderne Wannenbad und die Küche die mit hochwertigem Granit ausgestattet ist. Obwohl das Objekt über keinen Balkon verfügt, lädt die direkte Nähe zum Rhein und Volksgarten Sie ein, Ihre Freizeit draußen unter freiem Himmel zu genießen.
Die Wohnung besticht mit dem gelungenen Zusammenspiel von Altbau-Charme und Moderne, die jeglichem Anspruch an Hochwertigkeit gerecht wird.
| Lage | 40227 Düsseldorf Oberbilk – Oberbilker Allee / Mitsubishi Electric Halle |
|---|---|
| Wohnfläche | ca. 94 m² |
| Zimmer | 3,5 |
| Etage | 1. Obergeschoss | Miete | 726,00 € |
| Betriebskosten | 220,00 € inklusive Heizung |
| Warmmiete | 946,00 € |
| Extras | Hohe Decken und Stuckelemente, Nussbaumlaminat, Wannenbad, Wohnküche |
| Baujahr Gebäude | 1902 |
| Energieausweis | Energieausweistyp: Verbrauchsausweis Ausstellungsdatum: 06.6.2008 Baujahr Anlagentechnik: 1989 Energieträger: Öl Energieverbrauchskennwert: 147,08 kWh/(m²a) |
| Kontakt | info@pink-immobilien.de |
Bewertung des Vermieters
Klicken Sie auf das Bild, um es zu vergrößern.
Quelle: immobilienscout24.de
NEU Saniert! Großzügige geschnittene TOP 4-Zimmer-Wohnung mit großer Terrasse in TOP Altstadt-Lage
In dieser rund 115 m² großen 4-Zimmer-Wohnung verwirklichen Sie Ihren Traum vom attraktiven Wohnraum in einer absoluten Toplage und direkt im Herzen von Düsseldorf mit seinen pulsierenden Lokalen, Geschäften und Gastronomie. Trotz zentraler Innenstadtlage strahlt die Wohnlage eine ruhige und angenehme Atmosphäre aus. Als Mieter dieser schönen Wohnung nehmen Sie direkt am Stadtleben teil und kommen dennoch in den eigenen vier Wänden zur Ruhe.
Werden Sie jetzt Mieter dieser komplett modernisierten 4-Zimmer- Wohnung mit Küche, Diele, Badezimmer mit Wanne und Dusche und ein Gäste-WC mit Waschmaschinenplatz, sowie zur ruhigen Hofseite gelegenem Schlafzimmer und großer Terrasse.
TOP moderne Bäder, eine große Fensterfront im Wohnbereich, helle Bodenbeläge und isolierte Kunststofffenster gehören zur guten Ausstattung dieses Mietobjekts.
| Lage | 40213 Düsseldorf Altstadt – Flingerstraße |
|---|---|
| Wohnfläche | ca. 115 m² |
| Zimmer | 4 |
| Etage | 1. Obergeschoss | Miete | 1.276,00 € |
| Betriebskosten | 210,00 € |
| Warmmiete | 1.486,00 € |
| Extras | Terrasse mit Markise, Parkett, Badezimmer mit Wanne und Dusche und Gäste-WC, usw. |
| Baujahr Gebäude | 1900 |
| Energieausweis | Energieausweistyp: Energiebedarf Ausstellungsdatum: 16.6.2014 Baujahr Anlagentechnik: 2014 Energieträger: Erdgas Energieverbrauchskennwert: 154,00 kWh/(m²a) |
| Kontakt | info@pink-immobilien.de |
vermietet In Top-Lage gegenüber dem Zoopark wohnen *4*-Zimmer-Wohnung mit *2* Balkonen und Einbauküche
Willkommen in dieser ca. 100m² Balkonwohnung als Ihr idealer Rückzugsort in einer der besten Lage von Düsseldorf mit hochwertigen Umfeld und historischer Bausubstanz.
Die optimal aufgeteilte Wohnung im 1. Obergeschoss des gepflegten Mehrfamilienhauseses mit netter Hausgemeinschaft liegt gegenüber von dem attraktiven Zoo-Park, zentral und inmitten einer ausgezeichneten Infrastruktur.
Das Highlight der Wohnung sind die zwei Balkone und der großzügige Mittelpunkt: das Wohn- und Esszimmer. Das Wohn- und Geschäftshaus wurde im Jahr 1960 erbaut und ist bekannt auch durch den Gewerbehauptmieter, eine Reinigungsfirma mit überregionale Kundschaft, die sich auf hochwertige Textilien spezialisiert hat und die dort bereits in zweiter Generation das Geschäft betreibt. Positiv für Sie ist, dass die Reinigungsfirma sich unter dieser Wohnung befindet und dazu beiträgt, dass die Heizkosten in der Wohnung gering sind.
| Lage | 40239 Düsseldorf Düsseltal / Zoo – Grunerstraße |
|---|---|
| Wohnfläche | ca. 100 m² |
| Zimmer | 4 |
| Etage | 1. Obergeschoss ohne Aufzug | Miete | 823,00 € |
| Betriebskosten | 180,00 € |
| Heizkosten | 80,00 € |
| Warmmiete | 1.083,00 € |
| Extras | Wannenbad und Toilette separiert, Einbauschrank, Sicherheitsriegel, Fahrradkeller etc. |
| Baujahr Gebäude | 1960 |
| Energieausweis | Energieausweistyp: Verbrauchsausweis Ausstellungsdatum: 08.9.2008 Baujahr Anlagentechnik: 2002 Energieträger: Öl Energieverbrauchskennwert: 197,00 kWh/(m²a) |
| Kontakt | info@pink-immobilien.de |
bereits vermietet
Charmante 4-Zimmer-Wohnung mit Südbalkon im Zooviertel !
Hier finden Sie eine wunderschöne rund 100m² große Balkonwohnung zum idealen Rückzugsort inmitten einer der besten Lagen von Düsseldorf im Düsseltal in direkter Nähe des schönen Zoo-Parks.
Die Wohnung im 2. Obergeschoss besticht mit einem optimalen Grundriss und seinem 50ziger Jahre Charme, der jeglichem Anspruch an Großzügigkeit und besonderem Wohnen gerecht wird.
Das Highlight zu dieser attraktiven Wohnung ist der große Balkon, mit Süd-Westausrichtung! Dieser befindet sich nach hinten und ist von dem Esszimmer und der Küche aus begehbar. Er verfügt über eine schöne Sitzecke, einer Markise und einem praktischen Abstellraum.
Sie finden für Ihren Lounge Bereich mit Sesseln und Sofa großzügigen Platz im Wohnzimmer wie ebenfalls für Ihren Esstisch im angrenzenden Esszimmer. Das Esszimmer verbindet sich durch den großen Durchgang fließend mit dem angrenzenden Wohnzimmer und überzeugt durch seine Geräumigkeit. Der schöne Parkettboden verleiht den Räumen eine edle Atmosphäre.
Zentral und mit einer ausgezeichneten Infrastruktur liegt die Wohnung in einer absoluten Premiumlage in einem schönen Umfeld mit historischer Bausubstanz.
| Lage | 40239 Düsseldorf Düsseltal / Zoo – Scheidtstraße |
|---|---|
| Wohnfläche | ca. 100 m² |
| Zimmer | 4 |
| Etage | 2. Obergeschoss | Miete | 842,00 € |
| Betriebskosten | 300,00 € |
| Warmmiete | 1.142,00 € |
| Extras | Süd-Balkon mit Markise, Abstellraum, Parkett, Wannenbad und Gäste-WC, usw. |
| Kontakt | info@pink-immobilien.de |
bereits vermietet
Erstbezug nach Sanierung: Großzügige 3-Zimmer-Wohnung mit großem Sonnenbalkon in der Stadt !
In dieser rund 104 m² großen 3-Zimmer-Wohnung verwirklichen Sie Ihre Idee vom attraktiven Wohnen in einer bevorzugten Lage der Düsseldorfer Innenstadt. Die Wohnung liegt in einer ruhigen Seitenstraße und bietet alle Vorzüge der direkten Innenstadtlage. Als Mieter dieser attraktiven Wohnung genießen Sie das Flair des Stadtlebens & kommen dennoch in den eigenen vier Wänden zur Ruhe. Die Wohnung bietet Ihnen auf ca. 104 m² ein großzügiges Wohnambiente mit 3-Zimmern, eine Küche, eine einladende Diele, Abstellraum, zwei hochwertige Badezimmer, sowie einen großen Süd/West-Balkon. Die Highlights dieser Wohnung sind das ca. 30m² große Wohn- und Esszimmer mit dem großzügigen nach Süd-/West ausgerichteten Balkon, der über die ganze Länge vor dem Wohnraum und der Küche liegt außerdem, die zwei hochwertigen Badezimmer jeweils mit WC und neben dem ca. 25m² großen echten Wohlfühl-Schlafzimmer, auch das weitere, dritte Zimmer mit ca. 20m².
| Lage | 40212 Düsseldorf – Innenstadt, Marienstraße |
|---|---|
| Wohnfläche | ca. 110 m² |
| Zimmer | 3 + Wirtschaftsraum und Balkon |
| Etage | 3. Obergeschoss mit Aufzug | Miete | 1.048,00 € |
| Betriebskosten | 340,00 € inkl. Heizkosten |
| Warmmiete | 1.388,00 € |
| Extras | Aufzug, Balkon ca. 18m², Stuckleisten in Wohn- Schlafzimmern |
| Kontakt | info@pink-immobilien.de |
bereits vermietet
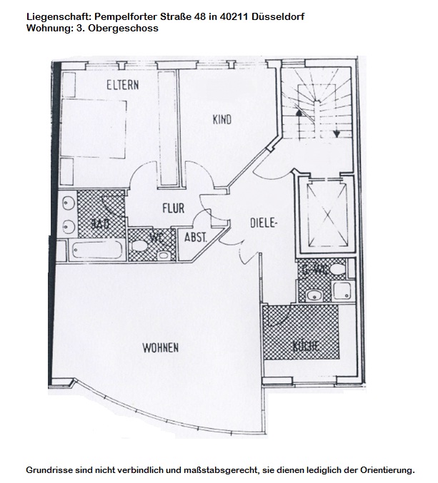
IHR SPRUNG IN EIN NEUES WOHNGEFÜHL- Lichtdurchflutete 3-Zimmer CITY-Wohnung!
Willkommen in dieser attraktiven rund 98m² großen Stadtwohnung als idealen Rückzugsort in einer der zentralen Lagen von Düsseldorf-Pempelfort. Die optimal aufgeteilte Wohnung im 3. Obergeschoss des gepflegten Mehrfamilienhauseses mit Aufzug liegt nahe Rhein und Hofgarten und zeichnet sich durch ihre ausgezeichnete Infrastruktur aus.
Highlight der Wohnung ist das großzügige und helle Wohn- und Esszimmer mit großer Fensterfront und hochwertigem Parkett mit Fußbodenheizung. Zwei weitere Schlafzimmer, zwei Bäder, eine Diele, eine Küche und ein Gäste-WV versprechen gehobene Wohnqualität. Die optimal eingepasste Einbauküche, die vom Mieter übernommen werden kann, bietet Ihnen Komfort.
| Lage | 40211 Düsseldorf, Pempelfort – Pempelforterstraße |
|---|---|
| Wohnfläche | ca. 90 m² |
| Zimmer | 3 |
| Etage | 3. Obergeschoss mit Aufzug | Miete | 805,00 € |
| Betriebskosten | 250,00 € inkl. Heizkosten |
| Warmmiete | 1.055,00 € |
| Tiefgaragenstellplatz | 89,25 € (inkl. MwSt.) |
| Extras | Parkett, Abstellschrank, Fußbodenheizung, Waschraum, etc. |
| Kontakt | info@pink-immobilien.de |
aktuelles Angebot
Einzigartige 2,5-Zimmer-Galerie-Wohnung mit Dachterrasse über den Dächern der Stadt!
Willkommen in Ihrem neuen Zuhause mit einer einzigartigen Wohnatmosphäre. Diese besondere 2,5-Zimmer-Galerie-Wohnung im 2. Obergeschoss eines stilvollen Altbaus bietet eine großzügige Wohnfläche von rund 107 m² und befindet sich im ruhigen Anbau zur Hofseite.
Highlight dieser attraktiven 2,5-Zimmer-Wohnung ist die offene Bauweise mit Galerieebene, und angrenzender Dachterrasse, die attraktive Wohnqualität für Singles oder Paare verspricht.
Großer Mittelpunkt dieser attraktiven Wohnung ist der offen gestaltete Wohnraum mit Galerie und großen Fensterelementen sowie Parkettboden.
Auf der Galerieebene, die Sie über eine freie Treppe erreichen, können Sie Ihre individuelle Wohnwünsche verwirklichen; als ein zweites Schlafzimmer oder als Ihren Homeoffice Platz nutzen. Von hier aus betreten Sie Ihre zum Hinterhof gelegene Dachterrasse, die Ihnen entspannte Sonnenstunden über den Dächern der Stadt verspricht.
In der zweiten Diele im hinteren Teil der Wohnung, der zwischen Küche und Schlafraum liegt und zu dem das Badezimmer führt, ist über die gesamte Länge ein Schrank eingebaut.
Ein weiterer Blickfang der Wohnung ist das geräumige Schlafzimmer mit Parkettboden und bodentiefe Fenstern sowie das angrenzende moderne Badezimmer mit Fenster, Badewanne und großem Waschtisch.
Die Wohnung besticht mit seiner hohen Qualität und ihrem eigenem Charme - den Sie genießen können mit individuellen Gestaltungsmöglichkeiten. Die Wohnung, die zur Hofseite liegt, befindet sich in einer ruhigen Seitenstraße und gleichzeitig repräsentativer Lage direkt im Herzen des aufstrebenden Stadtteils Düsseldorf-Pempelfort.
| Lage | 40477 Düsseldorf, Pempelfort – Gneisenaustraße |
|---|---|
| Wohnfläche | ca. 110 m² |
| Zimmer | 2,5 |
| Etage | 2. Obergeschoss | Miete | € 1.385 |
| Betriebskosten | € 220 inkl. Heizkosten |
| Warmmiete | €1.605 |
| Extras | Balkon zum Hinterhof, Parkettboden, Einbauküche, modernes Bad, Kellerraum, Fahrradraum, gemeinschaftlicher Wasch- und Trockenraum |
| Energieausweis | Energieausweistyp: Verbrauchsausweis Ausstellungsdatum: 19.01.2015 Baujahr Haus: 1905 san. 1990 - 2010 Baujahr Anlagentechnik: 1990 Energieträger: Erdgas LL Energieverbrauchskennwert: 128,2 kWh/(m²a) |
| Kontakt | info@pink-immobilien.de |
bereits vermietet
Sensationell diese Lage, diese Qualität! Wohnen für Familien oder Paare mit gehobenem Anspruch im Klemensviertel
Im beliebten Klemensviertel in Kaiserswerth am Rhein befindet sich diese 4-Zimmer-Wohnung im 2. Obergeschoss eines gepflegten Mehrfamilienhauses.
Auf einer Wohnfläche von rund 108 m² erleben Sie Top-Qualität in lichtdurchfluteten Räumen mit einer hochwertigen Ausstattung. Die Wohnung mit Wohnzimmer, drei Schlafzimmern, Küche, einer großer Terrasse sowie Badezimmer und Gäste-WC bieten viel Platz für die ganze Familie.
Begeistern wird Sie das freundliche Wohnzimmer mit großen Fensterelementen, Eichenparkett im Schiffsboden-Stil und weiß lackierten Türen, die der Wohnung eine klassische Eleganz verleihen.
Highlight der Wohnung ist die große Terrasse, die ihren Blick in den begrünten Innenhof und gemeinschaftlichen Garten öffnet. Der Stadtteil Kaiserswerth gehört zu den begehrten Stadtgebieten in der nördlichen Landeshauptstadt Düsseldorf in bester Lage nahe dem Rhein und der internationalen Schule.
| Lage | 40489 Düsseldorf, Kaiserswerth – Klemensplatz |
|---|---|
| Wohnfläche | ca. 108 m² |
| Zimmer | 4 |
| Etage | Erdgeschoss mit Aufzug | Miete | 1.058,00 € |
| Betriebskosten | 235,00 € inkl. Heizkosten |
| Warmmiete | 1.293,00 € |
| Tiefgaragenstellplatz | 40,00 € |
| Extras | Dachterrasse und Gartennutzung, Abstellräume, Parkett, hochwertigen Sanitärobjekten mit u.a. Glasduschabtrennung etc. |
| Kontakt | info@pink-immobilien.de |
bereits vermietet
4 (5) -Zimmer Wohnung mit *2* Sonnenbalkonen (Süd), optimaler Grundriss im Szeneviertel Pempelfort
Hier erwartet Sie eine großzügig aufgeteilte ca. 115m² (plus Balkone) große 4-Zimmer Wohnung mit 2 Balkonen und vorteilhaftem Grundriss in hervorragender Lage in dem begehrten Stadtteil Pempelfort.
Besonders an sonnigen Tagen können Sie den Mittelpunkt der Wohnung auch nach draußen verlegen auf die zwei nach Süden und der Hofseite ausgerichteten Balkonen. Vor Ihrem Einzug erhalten alle Zimmer zum Schallschutz abgehängte Decken mit Spots.
Die Hausfassade wurde gerade aufwendig Wärmeisoliert und freundlich gestaltet. Die Mieter berichten dadurch ein hohe Einsparmöglichkeit und einen hohen Komfort. Hier wohnen Sie auf der beliebten Franklinstraße die u.a. das begehrte Viertel ausmacht und eine Einbahnstraße ist.
| Lage | 40479 Düsseldorf Pempelfort – Franklinstraße |
|---|---|
| Wohnfläche | ca. 115 m² (zzgl. Balkone) |
| Geschoss | 2. Obergeschoss, plus Keller |
| Objektzustand | NEU modernisiert | Miete | 1.070 € |
| Miete | 175 € inkl. HKV |
| Warmmiete | 1.245 € |
| Extras | 2 Balkone, Möglichkeit zu 5 Zimmern, TOP Lage |
| Kontakt | info@pink-immobilien.de |
bereits vermietet
* Stilvoll sanierte Wohnung mit hohem Komfort, 2 Balkonen, Laminat & Extras* in Hilden
HIER: Hohe Decken teilweise mit Stuckelementen; zwei sonnige Balkon mit Blick ins Grüne; Flügeltüren, Wohnküche und Esszimmer, Wohnzimmer und 2 Schlafzimmer. Eine Marken-Einbau-Küche von Nobilia (www.nobilia.de) auf hohem Niveau. Die Küche ist erst ca. 6 Monate alt und ohne Abnutzungserscheinungen, diese kann ohne Kühlschrank gegen einen Abstand übernommen werden. Hier können Sie Wohn(t)raum genießen!
| Lage | 40721 Hilden, Fabriciusstraße |
|---|---|
| Wohnfläche | ca. 100 m² zzgl. 2 Balkone |
| Zimmer | 2 Schlafzimmer + Wohnzimmer+ Esszimmer + Küche+ Wannenbad + Diele |
| Etage | 1. Obergeschoss | Miete | 792,00 € |
| Betriebskosten | 80,00 € |
| Heizkosten | 70,00 € |
| Warmmiete | 942,00 € |
| Extras | 2 Balkone, Laminat, Wanne & Fenster, Stuck, EBK gegen Abstand |
| Kontakt | info@pink-immobilien.de |
bereits vermietet
MITTENDRIN im Szeneviertel BILK
2 Balkone, Offene Küche mit GROSSEM Wohnzimmer, modernes Bad >WG geeignet<
Hier bekommen Sie eine komfortable Ausstattung mit modernem Wannenbad, einer hellen Küche mit beidseitigem weißem Fliesenspiegel, teilw. Einbauleuchten, eigenen Gas-Therme, Laminat und vieles mehr geboten in absolut gefragter City-Lage! Der einladende Dielenbereich bringt Sie in den Mittelpunkt dieser schönen Wohnung: gebildet durch das großzügige und helle Wohnzimmer, mit seinem Essbereich und der offenen Küche sowie die angrenzende Loggia zur Hofseite. In diesem Wohnbereich bieten allein ca. 40m² viel Platz zum Wohlfühlen. Die Raumverteilung und alle Vorzüge dieser Wohnung sind super WG geeignet.
| Lage | 40223 Düsseldorf Bilk – Brunnenstraße |
|---|---|
| Wohnfläche | ca. 95 m² |
| Zimmer | 3 +2 Balkone +2 Bäder +2 Abstellräume+ Garderobe |
| Etage | 1. Obergeschoss | Miete | 760,00 € |
| Betriebskosten | 120,00 € ohne Heizung |
| Warmmiete | 880,00 € |
| Extras | 2 Balkone, offene Küche, , Gäste-WC, WG geeignet |
| Kontakt | info@pink-immobilien.de |
bereits vermietet
Harmonisches Wohnen im Herzen von Langenfeld: Hochwertig ausgestattete 3-Zimmer-Gartenwohnung *barrierefrei*
In einer der zentralen Wohnlagen in Langenfeld befindet sich diese 3-Zimmer-Erdgeschosswohnung, die zur ruhigen Gartenseite gelegen ist.
Die Wohnung hat eine Wohnfläche von rund 100m² (ohne Garten) und teilt sich auf in Wohnraum, zwei Schlafzimmer, Küche sowie Bad und Gäste-WC mit Dusche und Diele.
Wohnlicher Mittelpunkt bildet das helle Wohnzimmer mit hochwertigem Eichenparkett und großen Fenstern, die den Blick in den Garten öffnen.
Highlight der Wohnung ist eine 20m² große überdachte Terrasse mit anschließendem pflegeleichten Garten, in dem Sie schöne Sommerstunden genießen können.
Für einen separaten Wasch- und Trockenraum ist im Keller des Mehrfamilienhauses gesorgt, den Sie über zwei Aufzüge im Haus erreichen, wie der Wohnung zugehörend der barrierefreier TG-Stellplatz.
Die Barriere freie Gartenwohnung ist ein optimaler Rückzugsort für Singles, Kleinfamilien oder ältere Personen in der lebendigen Kleinstadt Langenfeld.
Hier erleben Sie Wohnidylle pur in Citylage im Herzen der Kleinstadt Langenfeld!
| Lage | 40764 Langenfeld Zentrum – Auf dem Sändchen |
|---|---|
| Wohnfläche | ca. 100 m² plus Garten |
| Zimmer | 3 |
| Etage | Erdgeschoss mit Aufzug | Miete | 847,00 € |
| Betriebskosten | 200,00 € inkl. Heizkosten |
| Warmmiete | 1.047,00 € |
| Tiefgaragenstellplatz | 40,00 € |
| Extras | Parkett, Fußbodenheizung, elektrischen Rollläden, dimmbaren Halogen-Spots, hochwertigen Sanitärobjekten etc. |
| Kontakt | info@pink-immobilien.de |
Gewährleistung:
Alle Angaben in unseren Exposés wurden nach bestem Wissen und Gewissen anhand der uns vom Eigentümer bzw. Auskunftsbefugten genannten Angaben bzw. übergebenen Unterlagen erstellt und spiegelt nur unsere Meinung wieder. Wir sind stets um Vollständigkeit, Richtigkeit sowie Aktualität der Inhalte bemüht, übernehmen dennoch keine Gewähr dafür. Auch für späteren Schadenersatzansprüchen sowie Streitigkeiten, die aus dem Mietverhältnis entstehen, sowie daraus resultierenden Ansprüchen, können wir keinerlei Haftung übernehmen. Zwischenvermietung wie Änderungen vorbehalten. Die Exposés dienen als Information. Als Rechtsgrundlage gilt allein der abgeschlossene Mietvertrag. Die Texte sind urheberrechtlich geschützt. Eine Verwendung für den eigenen Bedarf, Verkauf oder Weitergabe an Dritte sind nicht erlaubt. Die Weitergabe dieses Angebotes an Dritte ist ohne unsere ausdrückliche Genehmigung nicht erlaubt. Bei Zuwiderhandlung haften Sie für die uns entgangene Provisions-- bzw. Schadensansprüche. Abgebildeten Ansichten und Grundrisse sind nicht verbindlich und maßstabsgerecht, sie dienen lediglich der Orientierung. Ansprüche auf bestimmte Ausstattungen, Möblierungen und Ausführungen können daher nicht abgeleitet werden.



























































































































































































































